
iad Deutschland GmbH
Frau Aigerim ABDYBALIYEVA
004 ···
Nr. anzeigenPreise & Kosten
Provision für Käufer
Provisionsfrei für Käufer
Lage
Das Zentrum so nah. Der Natur noch näher.
Nur eine halbe Stunde von Berlin-Mitte entfernt, liegt im Norden Berlins eine kleine Wohnidylle. Hier wohnt man naturnah und entspannt. Für Menschen, die das Stadtleben lieben, aber gleichzeitig einen ruhigen Rückzugsort suchen, ist Wilhelmsruh der perfekte Ort.
Im...
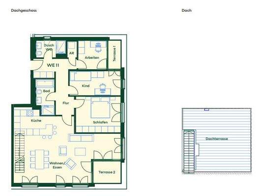
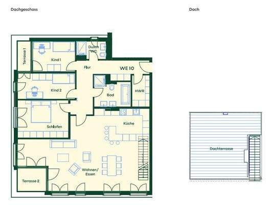
Die Wohnung
Kategorie
Penthouse
Wohnungslage
3. Geschoss
Wohnanlage
Energie & Heizung
Warum sehe ich diese Anzeige? – Du siehst diese Anzeige basierend auf Ihrer Navigation auf unserer Website und den Suchkriterien, die du verwendet hast.
Energieausweistyp
Bedarfsausweis
Gebäudetyp
Wohngebäude
Baujahr laut Energieausweis
2023
Wesentliche Energieträger
LUFTWP
Gültigkeit
bis 25.07.2033
Effizienzklasse
A+
Endenergiebedarf
9,00 kWh/(m²·a)
Weitere Energiedaten
Heizungsart
Luft-/Wasser-Wärmepumpe
Details
Objektbeschreibung
Provisionsfrei für Käufer - Bezugsfertigkeit und Fertigstellung voraussichtlich Mai 2026 - Besichtigung nach Vereinbarung - KFW 40 förderfähig!
Objektadresse: Hielscherstr.51 in Wilhelmsruh
Diese exklusive 4-Zimmer-Penthousewohnung im dritten Obergeschoss überzeugt durch ihre großzügige Gestaltung, viel Licht und...
Ausstattung
- Klare, ruhige Linien, helle Farben, hochwertige Marken-Armaturen (GROHE), modernerne Sanitärkeramik von Villeroy & Boch, moderne Sanitärkeramik und natürliche Materialien
- Schiffsboden-Eichenparkett in verschiedenen Ausführungen
- Fahrradabstellräume und eigener Keller mit ca. 6m²
- Energie: Wärmepumpe und...
Preisinformation
1 Stellplatz, Kaufpreis: 30.000,00 EUR
Weitere Informationen
Sonstiges
An den Kunden durch uns weitergeleitete Angaben und Informationen zu Objekten liegen die uns erteilten Auskünfte des Veräußerers bzw. Vermieters zugrunde. Die I@D Deutschland GmbH hat diese Angaben nicht geprüft. Vielmehr obliegt die Prüfung der Richtigkeit und/oder Vollständigkeit der Angaben allein dem Kunden...
Anbieter der Immobilie
iad Deutschland GmbH
Schleusenstraße 15-17, 60327 Frankfurt am Main
Online-ID: 2nmcw5r
Referenznummer: iad-4455
Finde Angebote wie dieses
Hier geht es zu unserem Impressum, den Allgemeinen Geschäftsbedingungen, den Hinweisen zum Datenschutz und nutzungsbasierter Online-Werbung.