

Imken Immobilien GmbH & Co. KG
Herr Jürgen Imken
+49 ···
Nr. anzeigenPreise & Kosten
Provision für Käufer
Die Courtage für den Nachweis und / oder die Vermittlung beträgt für den Käufer und Verkäufer jeweils 3,57% inkl. MwSt. vom Kaufpreis. Sie ist verdient und fällig mit der Beurkundung des Kaufvertrages.
Lage
Das Objekt befindet sich in gefragter Lage von Hamburg Hamm und ist in einer ruhigen Seitenstraße gelegen.
Eine Vielzahl von Handelsgeschäften ermöglichen fußläufig den unkomplizierten Einkauf für den täglichen Bedarf. Eine große Auswahl an Restaurants und Cafés, beispielsweise in der immer beliebter werdenden...
Die Wohnung
Wohnungslage
1. Geschoss
Bezug
Sofort verfügbar!
Derzeitige Nutzung
frei
Wohnanlage
Energie & Heizung
Warum sehe ich diese Anzeige? – Du siehst diese Anzeige basierend auf Ihrer Navigation auf unserer Website und den Suchkriterien, die du verwendet hast.
Energieausweistyp
Verbrauchsausweis
Gebäudetyp
Wohngebäude
Baujahr laut Energieausweis
1956
Wesentliche Energieträger
FERN
Gültigkeit
bis 22.09.2027
Effizienzklasse
C
Endenergieverbrauch
96,00 kWh/(m²·a)
Weitere Energiedaten
Energieträger
Fernwärme
Details
Objektbeschreibung
Die hier angebotene Wohnung befindet sich in der 1. Etage. Das gepflegte Mehrfamilienhaus wurde 1956 erbaut und bildet zusammen mit dem Nachbarhaus eine WEG mit insgesamt 16 Einheiten.
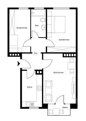
Mit einer Wohnungsgröße von ca. 60 m² verfügt die Wohnung über 2,5 Zimmer. Alle Räume gehen vom Flur ab und sind optimal geschnitten...
Weitere Informationen
Sonstiges
Es liegt ein Energieverbrauchsausweis vor.
Dieser ist gültig bis 22.9.2027.
Endenergieverbrauch beträgt 96.00 kwh/(m²*a).
Wesentlicher Energieträger der Heizung ist Fernwärme.
Das Baujahr des Objekts lt. Energieausweis ist 1956.
Die Energieeffizienzklasse ist C.
Hinweise und...
Anbieter der Immobilie
Imken Immobilien GmbH & Co. KG
Große Bleichen 21, 20354 Hamburg

Online-ID: 2nmcl5g
Referenznummer: 773
Finde Angebote wie dieses
Hier geht es zu unserem Impressum, den Allgemeinen Geschäftsbedingungen, den Hinweisen zum Datenschutz und nutzungsbasierter Online-Werbung.