
McMakler GmbH
Ihr McMakler Team
080 ···
Nr. anzeigenPreise & Kosten
Provision für Käufer
Die Provision i.H.v. 3,57 % inkl. MwSt. ist mit Kaufvertragsbeurkundung fällig, sofern der Verkaufspreis über 83.000,00 € liegt.
Liegt der Verkaufspreis dagegen bei/unter 83. Weitere Informationen siehe Provisionshinweis.
Lage
Lage: Frische Luft dank Feldrandlage - ideal für einen naturnahen Lebensstil
Bildung und Betreuung: Einigen Schulen in ca. 6 km bis ca. 9 km Entfernung bieten Familienfreundlichkeit. Selenter See 1,5km entfernt, Ostsee 20km entfernt.
Nahversorgung: Verschiedene Anlaufstellen wie Supermarkt, Apotheke, Arzt und...
Das Haus
Kategorie
Bauernhaus
Baujahr
1800
Bezug
nach Absprache
Energie & Heizung
Warum sehe ich diese Anzeige? – Du siehst diese Anzeige basierend auf Ihrer Navigation auf unserer Website und den Suchkriterien, die du verwendet hast.
Energieausweistyp
Bedarfsausweis
Gebäudetyp
Wohngebäude
Baujahr laut Energieausweis
1800
Wesentliche Energieträger
Öl
Effizienzklasse
G
Endenergiebedarf
242,00 kWh/(m²·a)
Weitere Energiedaten
Energieträger
Öl
Heizungsart
Zentralheizung
Details
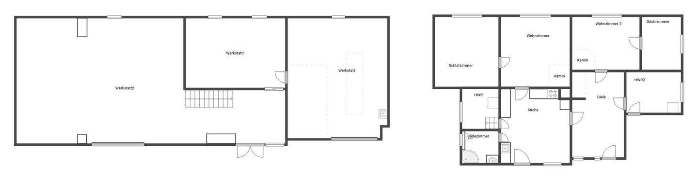
Objektbeschreibung
Objektnr: 1067362
Als ideale Wahl für Eigennutzer, Handwerker, Schrauber oder Oldtimerfreunde präsentiert sich dieses Objekt, sicher und beschaulich in einer Sackgasse in Martensrade. Der Standort überzeugt besonders durch seine ruhige Feldrandlage. Hier locken Entspannung und ausführliche Spaziergänge durch die...
Ausstattung
+ In ruhiger Umgebung in Feldrandlage von Martensrade, sicher und beschaulich in einer Sackgasse, zur Vermietung und zur individuellen Nutzung
+ Beheizte Werkstatt
+ PV - Anlage - Einspeisevergütung derzeit € 600/Monat & Glasfaser
+ Entspannung im Freien: Der Garten auf ca. 6.498 m² großzügigem Grund lädt zum...
Weitere Informationen
Provisionshinweis
Die Provision i.H.v. 3,57 % inkl. MwSt. ist mit Kaufvertragsbeurkundung fällig, sofern der Verkaufspreis über 83.000,00 € liegt.
Liegt der Verkaufspreis dagegen bei/unter 83.000,00 €, ist die fest vereinbarte Mindestprovision i.H.v. mind. 5.950,00 € inkl. MwSt. mit Kaufvertragsbeurkundung fällig...
Anbieter der Immobilie
McMakler GmbH
Am Postbahnhof 17, 10243 Berlin
Online-ID: 2nmbx5x
Referenznummer: 52af69773d
Finde Angebote wie dieses
Hier geht es zu unserem Impressum, den Allgemeinen Geschäftsbedingungen, den Hinweisen zum Datenschutz und nutzungsbasierter Online-Werbung.