Haupt Immobilien

Herrn Georg Haupt

Frisch sanierte große 6 Zimer Wohnung sucht vierköpfige Familie

€ 1.999
Kaltmiete zzgl. NK
170 m²
Wohnfläche ca.
6
Zimmer

Der Anbieter dieses Objekts hat gegenüber der AVIV Germany GmbH als Betreiber dieses Online-Marktplatzes erklärt, nicht als Unternehmer im Sinne des § 1 KSchG zu handeln. Die im Verbraucherschutzrecht der Union verankerten Verbraucherrechte (insbesondere Informationspflichten und Rücktritts- bzw. Widerrufsrechte) finden auf den Vertrag zwischen dem Anbieter des Objekts und Ihnen (dem Interessenten) keine Anwendung.

Gewerblicher Anbieter

Der Anbieter dieses Objekts hat gegenüber der AVIV Germany GmbH als Betreiber dieses Online-Marktplatzes erklärt, als Unternehmer im Sinne des § 1 KSchG zu handeln.

AdresseStraße nicht freigegeben
85777 Fahrenzhausen 
(Weng)
Auf Karte ansehen

Preise & Kosten

Kaltmiete € 1.999 Nebenkosten € 300 Heizkosten in Nebenkosten enthalten 2 Stellplätze, je € 51

Kaution

6150

Lage

wohnen auf dem Land in
ruhige Lage an der Würm

Die Wohnung

Wohnungslage

1. Geschoss

Bezug

sofort

  • Bad mit Fenster, Wanne und Dusche
  • Balkon
  • Böden: Fliesenboden, Parkett
  • Fenster: Kunststofffenster
  • Weitere Räume: Dach ausgebaut

Wohnanlage

  • Baujahr: 1985
  • 2 Stellplätze: Carport

Energie & Heizung

Weitere Energiedaten

Energieträger

Holz, Öl

Heizungsart

Fußbodenheizung

Details

Objektbeschreibung

Objektbeschreibung
Achtung Wohnung ist Honorarpflichig
Erstbezug nach Sanierung
Bad neu
Bad neu im DG
Böden neu
Kachelofen
Balkon

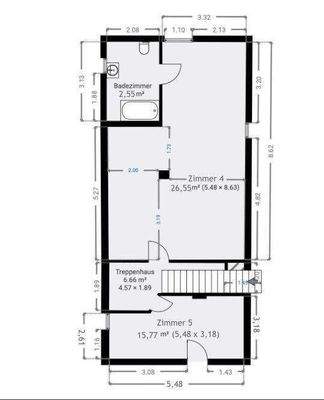
Raumaufteilung
Honorar 2 Monatsmieten zzgl. MwSt.
1 Stock mit Fußbodenheizung neu
Dachgeschoß mit Heizung in der Dachscgräge
Wohnzimmer, Küche, Bad mit...

Mehr anzeigen

Weitere Informationen

Sonstiges
Besichtigungstermine
nach Vereinbarung

Anbieter der Immobilie

Haupt Immobilien

Höferwiesen 10, 4121 ALTENFELDEN

user

Herrn Georg Haupt

Dein Ansprechpartner

Anbieter-Website Anbieter-Impressum

Online-ID: 2nm595a

Finde Angebote wie dieses

imageimageimage

Hier geht es zu unserem Impressum, den Allgemeinen Geschäftsbedingungen, den Hinweisen zum Datenschutz und nutzungsbasierter Online-Werbung.