
Seibel Immobilien GbR
Herr/Frau Paul Seibel
041 ···
Nr. anzeigenPreise & Kosten
Provision für Käufer
Käuferprovision 5,95 Prozent inkl. MwSt. vom Grundstückspreis
Das Haus
Baujahr
2026
Energie & Heizung
Warum sehe ich diese Anzeige? – Du siehst diese Anzeige basierend auf Ihrer Navigation auf unserer Website und den Suchkriterien, die du verwendet hast.
Energieausweis: für diesen Gebäudetyp nicht notwendig
Weitere Energiedaten
Energieträger
Elektro
Heizungsart
Fußbodenheizung, Luft-/Wasser-Wärmepumpe
Details
Objektbeschreibung
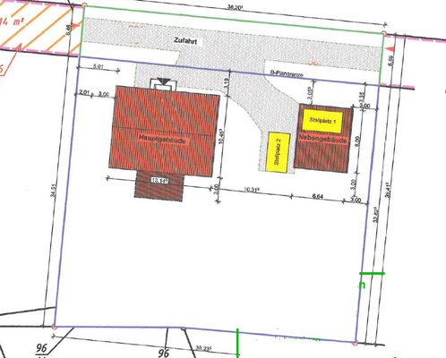
In ruhiger Wohnlage von Mechtersen erwartet Sie dieses großzügige und bereits vorbereitete Baugrundstück mit wunderschönem Blick über angrenzende Felder. Das Grundstück ist vollständig erschlossen, nicht in Erbpacht und verfügt über eine gültige Baugenehmigung – ideale Voraussetzungen, um Ihr Bauprojekt ohne Verzögerung zu...
Weitere Informationen
Sonstiges
Provision: für Käufer 5,95 Prozent (inkl. MwSt.) vom Kaufpreis des Grundstücks
Besichtigungstermine nach Vereinbarung.
Zwischenverkauf und Irrtümer vorbehalten.
---------------------------------------------------------------
Sie haben eine Immobilie zu verkaufen oder zu vermieten...
Dokumente
Anbieter der Immobilie
Seibel Immobilien GbR
Memeler Straße 28, 21337 Lüneburg
Online-ID: 2nm285n
Referenznummer: 0214H-2026
Finde Angebote wie dieses
Hier geht es zu unserem Impressum, den Allgemeinen Geschäftsbedingungen, den Hinweisen zum Datenschutz und nutzungsbasierter Online-Werbung.