

Sparkasse Chemnitz, Immobilien, in Vertretung der LBS IMMOBILIEN GMBH Nordost
Herr Sascha Maultzsch
037 ···
Nr. anzeigenPreise & Kosten
Provision für Käufer
3570 EUR inkl. MwSt.
Lage
Röhrsdorf ist ein kleines, über 800 Jahre altes Dorf, welches 1999 eingemeindet wurde, und am nordwestlichen Rand von Chemnitz liegt. Angrenzend finden Sie die Stadtteile Wittgensdorf, Borna-Heinersdorf, Rottluff, Rabenstein und Grüna.
Über das ganze Jahr verteilt erfüllen Vereine, Clubs, die Schule und andere...
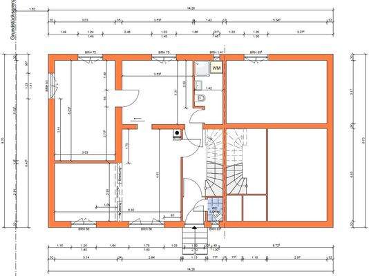
Das Haus
Kategorie
Doppelhaushälfte
Baujahr
1933
Energie & Heizung
Warum sehe ich diese Anzeige? – Du siehst diese Anzeige basierend auf Ihrer Navigation auf unserer Website und den Suchkriterien, die du verwendet hast.
Energieausweistyp
Bedarfsausweis
Gebäudetyp
Wohngebäude
Baujahr laut Energieausweis
1933
Wesentliche Energieträger
Gas, Elektroenergie
Gültigkeit
22.12.2025 bis 22.12.2035
Effizienzklasse
H
Endenergiebedarf
360,00 kWh/(m²·a)
Weitere Energiedaten
Haustyp
Massivhaus
Energieträger
Elektro, Gas
Heizungsart
Ofen, offener Kamin
Details
Objektbeschreibung
Wollen Sie das ruhige Landleben genießen und trotzdem alle Vorzüge der Großstadt um die Ecke haben? Dann erwartet Sie in diesem Objekt, ein Haus im Dornröschenschlaf, was zum Leben erweckt werden möchte.
Diese charmante Doppelhaushälfte aus dem Jahr 1933 erstreckt sich über zwei Wohnetagen und einen großen...
Ausstattung
- Gesamtwohnfläche ca. 120 m²
- Grundstücksfläche ca. 505 m²
- aktuell 2 Wohnetagen mit bis zu 6 Zimmer
- Tageslichtbad im Erdgeschoss mit Dusche
- separates Gäste-WC
- Ofenheizung und Durchlauferhitzer
- ausbaufähiges Dachgeschoss
- Kaltdach, Dachdeckung: Naturschiefer
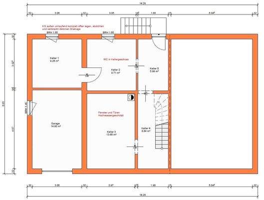
- voll unterkellert
-...
Weitere Informationen
Sonstiges
Alle Angaben haben wir vom Auftraggeber erhalten. Für deren Richtigkeit können wir keine Gewähr übernehmen. Einen Zwischenverkauf behält sich der Auftraggeber/Verkäufer ausdrücklich vor.
Wir bitten um Verständnis, dass wir nur vollständige, schriftliche Anfragen (E-Mail, Fax, Brief) mit Namen, Anschrift...
Anbieter der Immobilie
Sparkasse Chemnitz, Immobilien, in Vertretung der LBS IMMOBILIEN GMBH Nordost
Bahnhofstraße 51, 09111 Chemnitz

Online-ID: 2nlxl5h
Referenznummer: 170-2950
Finde Angebote wie dieses
Hier geht es zu unserem Impressum, den Allgemeinen Geschäftsbedingungen, den Hinweisen zum Datenschutz und nutzungsbasierter Online-Werbung.