
Marko Künne Immobilien
034 ···
Nr. anzeigenPreise & Kosten
Provision für Käufer
provisionsfrei
Lage
Die Johannesvorstadt in Erfurt liegt nordwestlich der Altstadt und ist ein historisch gewachsenes Viertel, welches durch seine dichte Bebauung und vielfältige Nutzung geprägt ist. Es handelt sich um ein urbanes Wohngebiet, das überwiegend von Altbauten und typischen Gründerzeithäusern dominiert wird. Die Johannesstraße...
Die Wohnung
Wohnungslage
4. Geschoss (Dachgeschoss)
Bezug
sofort
Derzeitige Nutzung
vermietet
Energie & Heizung
Warum sehe ich diese Anzeige? – Du siehst diese Anzeige basierend auf Ihrer Navigation auf unserer Website und den Suchkriterien, die du verwendet hast.
Energieausweistyp
Verbrauchsausweis
Gebäudetyp
Wohngebäude
Wesentliche Energieträger
Gas
Gültigkeit
19.04.2018 bis 18.04.2028
Effizienzklasse
C
Endenergieverbrauch
86,90 kWh/(m²·a) - Warmwasser enthalten
Weitere Energiedaten
Energieträger
Gas
Heizungsart
Zentralheizung
Details
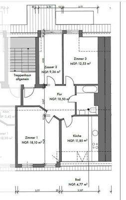
Objektbeschreibung
Zum Verkauf steht eine Erdgeschosswohnung im MFH Eugen-Richter-Str. 2 in Erfurt. Das Gebäude wird derzeit gemäß § 8 WEG in zehn Eigentumswohnungen aufgeteilt.
Die Dachgeschosswohnung verfügt über eine Wohnfläche von ca. 67,11 m², bestehend aus 3 Zimmern, Küche mit angrenzendem Abstellraum, Bad und Flur. Zusätzlichen...
Preisinformation
Nettorendite Ist in %: 3,5
Nettorendite Soll in %: 3,5
Soll-Mieteinnahmen pro Jahr: 6.081,60 EUR
Ist-Mieteinnahmen pro Jahr: 6.081,60 EUR
Weitere Informationen
Stichworte
Anzahl der Schlafzimmer: 2, Anzahl der Badezimmer: 1, Anzahl der Wohneinheiten: 1, Bundesland: Thüringen, 4 Etagen, Wohnungsnr.: WE 09
Anbieter der Immobilie
Online-ID: 2nlvf5y
Referenznummer: WE 09 Eugen-Richter-Str. 2
Finde Angebote wie dieses
Hier geht es zu unserem Impressum, den Allgemeinen Geschäftsbedingungen, den Hinweisen zum Datenschutz und nutzungsbasierter Online-Werbung.