

SNR Immobilien UG (haftungsbeschränkt) & Co. KG
Herr/Frau Sebastian Nagel
038 ···
Nr. anzeigenPreise & Kosten
Provision für Käufer
4,76%
4,76% Käuferprovision inkl. MwSt., verdient und fällig mit Beurkundung des notariellen Kaufvertrages.
Lage
Das Objekt befindet sich im Rostocker Stadtteil Dierkow, ca. 3,7 km nordöstlich des Stadtzentrums. Die Umgebung ist überwiegend wohnwirtschaftlich und gewerblich geprägt.
Planungsrechtlich befindet sich das Grundstück im Innenbereich gemäß § 34 BauGB; ein Bebauungsplan besteht nicht. Der Flächennutzungsplan weist ein...
Das Haus
Kategorie
Mehrfamilienhaus
Baujahr
1994
Bezug
nach Absprache
Energie & Heizung
Warum sehe ich diese Anzeige? – Du siehst diese Anzeige basierend auf Ihrer Navigation auf unserer Website und den Suchkriterien, die du verwendet hast.
Energieausweistyp
Verbrauchsausweis
Gebäudetyp
Wohngebäude
Wesentliche Energieträger
Fernwärme
Gültigkeit
15.03.2026 bis 14.03.2036
Effizienzklasse
B
Endenergieverbrauch
66,17 kWh/(m²·a) - Warmwasser enthalten
Weitere Energiedaten
Energieträger
Fernwärme
Details
Objektbeschreibung
In gefestigter Lage von Rostock-Dierkow präsentiert sich dieses freistehende Wohn- und Geschäftshaus aus dem Baujahr 1994 als nachhaltige Mischimmobilie mit stabiler Ertragsstruktur und klarer Nutzungstrennung.
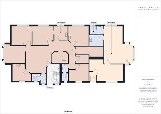
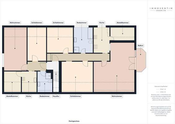
Das Gebäude vereint zwei Gewerbeeinheiten im Erdgeschoss mit zwei Wohneinheiten im Dachgeschoss und bietet...
Ausstattung
Das Gebäude wurde in massiver Bauweise errichtet und befindet sich in einem gepflegten, laufend instandgehaltenen Zustand.
Wesentliche Merkmale:
· Massivbauweise (Mauerwerk)
· Satteldach mit glasierten Tondachziegeln, gedämmt
· Kunststofffenster mit Isolierverglasung (teilweise erneuert...
Preisinformation
8 Stellplätze
Weitere Informationen
Sonstiges
Ein Verkehrswertgutachten vom 09.01.2025 liegt vor.
· Ertragswert / Marktwert gem. Gutachten: 813.000 € / Sachwert 882.000 €
· Bewertungsansatz: 21,3-fache Jahresmiete
· Bruttorendite: 3,63 %
· Nettorendite: 3,39 %
Der im Gutachten ermittelte Wert basiert auf dem...
Anbieter der Immobilie
SNR Immobilien UG (haftungsbeschränkt) & Co. KG
Friedrich-Franz-Straße 8, 18119 Rostock

Online-ID: 2nltw5x
Referenznummer: 4745815
Finde Angebote wie dieses
Hier geht es zu unserem Impressum, den Allgemeinen Geschäftsbedingungen, den Hinweisen zum Datenschutz und nutzungsbasierter Online-Werbung.