
Stefan Eisenbichler
Frau Christine Eisenbichler Immobilienmaklerin IHK
+49 ···
Nr. anzeigenPreise & Kosten
Provision für Käufer
3,57% ink. 19% MwSt.
Es liegt ein provisionspflichtiger Maklervertrag mit dem Verkäufer vor. Die Höhe der Courtage richtet sich nach den zum 23.12. Weitere Informationen siehe Provisionshinweis.
Lage
Die Wohnung befindet sich im idyllischen Ortsteil Hammer der Gemeinde Siegsdorf, mitten im beliebten Chiemgau. Die malerische Umgebung mit Wiesen, Wäldern und Bergen bietet perfekte Voraussetzungen für Natur- und Sportliebhaber.
Für sportlich Aktive ist die Region ein echter Hotspot: Wanderwege, Radstrecken, Bergtouren...
Die Wohnung
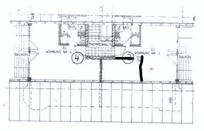
Wohnungslage
1. Geschoss
Bezug
nach Absprache
Derzeitige Nutzung
vermietet
Wohnanlage
Energie & Heizung
Warum sehe ich diese Anzeige? – Du siehst diese Anzeige basierend auf Ihrer Navigation auf unserer Website und den Suchkriterien, die du verwendet hast.
Energieausweistyp
Verbrauchsausweis
Gebäudetyp
Wohngebäude
Wesentliche Energieträger
Öl
Gültigkeit
10.07.2019 bis 09.07.2029
Effizienzklasse
D
Endenergieverbrauch
126,00 kWh/(m²·a)
Weitere Energiedaten
Energieträger
Öl
Heizungsart
Zentralheizung
Details
Objektbeschreibung
Diese charmante Wohnung im 1. Obergeschoss mit ausgebautem Dachgeschoss besticht durch einen durchdachten Grundriss, ein warmes Wohnambiente sowie einen herrlichen Blick auf Berge und Wiesen.
Die Hauptwohnung verfügt über eine Wohnfläche von ca. 68?m². Ergänzt wird sie durch die neu ausgebaute Dachfläche mit weiteren ca...
Ausstattung
- Wohnung im 1. Obergeschoss mit einer neu ausgebauten Dachwohnung
- neu ausgebauter Dachboden (ca. 34 m² Wohnfläche, nicht als Wohnraum zur separaten Vermietung genehmigt)
- Balkon mit Bergblick
- Kamin (Kachelofen) im Flur, beheizt die gesamte Wohnung
- Wohnfläche ca. 68 m² im 1. OG plus ca. 34 m² in Dachboden...
Preisinformation
2 Garagenstellplätze
Weitere Informationen
Provisionshinweis
3,57% ink. 19% MwSt.
Es liegt ein provisionspflichtiger Maklervertrag mit dem Verkäufer vor. Die Höhe der Courtage richtet sich nach den zum 23.12.2020 in Kraft getretenen gesetzlichen Regelungen zur Teilung der Maklercourtage. Hiernach wird die Courtage für beide Parteien (Verkäufer und Käufer) je...
Dokumente
Anbieter der Immobilie
Online-ID: 2nlsy5j
Referenznummer: 112
Finde Angebote wie dieses
Hier geht es zu unserem Impressum, den Allgemeinen Geschäftsbedingungen, den Hinweisen zum Datenschutz und nutzungsbasierter Online-Werbung.