
Schmidinger Immobilien
Hanspeter Schmidinger
073 ···
Nr. anzeigenPreise & Kosten
Provision für Käufer
3,57% aus dem notariellem Kaufpreis
3,57% aus dem notariellem Kaufpreis
Lage
Die Wohnung befindet sich in einem ruhigen Wohngebiet von Schönebürg, das durch seine angenehme, naturnahe Umgebung besticht. Öffentliche Verkehrsmittel wie der Bus sind in der Nähe vorhanden, was eine gute Anbindung garantiert. Die umliegende Wohngegend bietet eine harmonische Mischung aus Ruhe und Nachbarschaft.
Für...
Die Wohnung
Kategorie
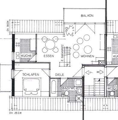
Maisonette
Wohnungslage
2. Geschoss
Derzeitige Nutzung
vermietet
Wohnanlage
Energie & Heizung
Warum sehe ich diese Anzeige? – Du siehst diese Anzeige basierend auf Ihrer Navigation auf unserer Website und den Suchkriterien, die du verwendet hast.
Energieausweistyp
Verbrauchsausweis
Gebäudetyp
Wohngebäude
Baujahr laut Energieausweis
1960
Wesentliche Energieträger
Öl
Gültigkeit
15.07.2025 bis 14.07.2035
Endenergieverbrauch
69,00 kWh/(m²·a) - Warmwasser enthalten
Weitere Energiedaten
Energieträger
Öl
Heizungsart
Zentralheizung
Details
Objektbeschreibung
Diese charmante 3-Zimmer-Maisonettewohnung in Schönebürg verspricht ein behagliches Wohngefühl auf zwei Ebenen. Mit einer großzügigen Wohnfläche von 80 m² bietet sie Raum zum Entspannen und Leben für Singles oder Paare. Zwei einladende Schlafzimmer schaffen Rückzugsorte voller Ruhe, während das helle Badezimmer mit Dusche...
Ausstattung
Die Wohnung hat eine Einbauküche, die das Kochen zum Vergnügen macht. Die Böden sind mit Fliesen sowie Laminat versehen - Fliesen bieten eine pflegeleichte, robuste Oberfläche, die besonders in Küche und Bad ideal ist, während Laminat durch seine warme Optik und angenehme Haptik in Wohn- und Schlafräumen für Gemütlichkeit...
Preisinformation
1 Stellplatz
Ist-Mieteinnahmen pro Jahr: 9.720,00 EUR
Weitere Informationen
Sonstiges
Zur Wohnung gehört ein Außenstellplatz und ein kleiner Kellerraum .
Stichworte
Nutzfläche: 4,00 m², Anzahl der Schlafzimmer: 2, Anzahl der Badezimmer: 1, Anzahl Balkone: 2, Lage im Wohngebiet, modernisiert: 1990
Anbieter der Immobilie
Schmidinger Immobilien
Saulgauer Str. 31, 88400 Biberach
Online-ID: 2nlsj5s
Referenznummer: 04922
Finde Angebote wie dieses
Hier geht es zu unserem Impressum, den Allgemeinen Geschäftsbedingungen, den Hinweisen zum Datenschutz und nutzungsbasierter Online-Werbung.