

Journal Hausverwaltung GmbH & Co. KG
Frau Jolantha Genne
074 ···
Nr. anzeigenPreise & Kosten
Verhandlungsbasis
Provision für Käufer
Wir dürfen für Verkäufer und Käufer provisionspflichtig tätig werden. Die Maklercourtage beträgt jeweils 3,57 % inkl. MwSt.
Abschreibung/Anlage
als Kapitalanlage geeignet
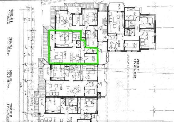
Die Wohnung
Wohnungslage
1. Geschoss
Derzeitige Nutzung
vermietet
Wohnanlage
Energie & Heizung
Warum sehe ich diese Anzeige? – Du siehst diese Anzeige basierend auf Ihrer Navigation auf unserer Website und den Suchkriterien, die du verwendet hast.
Energieausweistyp
Verbrauchsausweis
Gebäudetyp
Wohngebäude
Baujahr laut Energieausweis
1982
Wesentliche Energieträger
Erdgas
Gültigkeit
06.03.2019 bis 05.03.2029
Effizienzklasse
C
Endenergieverbrauch
93,80 kWh/(m²·a)
Weitere Energiedaten
Energieträger
Gas
Heizungsart
Zentralheizung
Details
Objektbeschreibung
Zum Verkauf steht eine gut geschnittene 2-Zimmer-Wohnung mit Abstellraum auf ca. 62 m² Wohnfläche in zentraler Lage von Nebringen – ein Zuhause mit solidem Fundament und spannendem Entwicklungspotenzial.
Der helle Wohnbereich mit Zugang zum überdachten Balkon lädt zum Entspannen ein und bietet Raum für individuelle...
Weitere Informationen
Weitere Vorteile
Gäufelden-Nebringen überzeugt mit einer ruhigen, gewachsenen Wohnlage und einer sehr guten Anbindung an Herrenberg, Böblingen und Tübingen. Das Wohnhaus selbst liegt zentral, sodass Einkaufsmöglichkeiten, der öffentliche Nahverkehr und Naherholungsflächen schnell erreichbar sind. Der aktive...
Dokumente
Anbieter der Immobilie
Journal Hausverwaltung GmbH & Co. KG
Oberjettinger Straße 28, 72202 Nagold

Online-ID: 2nlr85e
Finde Angebote wie dieses
Hier geht es zu unserem Impressum, den Allgemeinen Geschäftsbedingungen, den Hinweisen zum Datenschutz und nutzungsbasierter Online-Werbung.