

Frank Immobilien
Herr/Frau Martin Frank
075 ···
Nr. anzeigenPreise & Kosten
Provision für Käufer
2,50 %
In Summe wird eine Courtage inkl. MwSt. von 2,50 % fällig, sofern ein notarieller
Kaufvertrag zustande kommt. Wir haben einen provisionspflichtigen Maklervertrag mit dem Verkäufer in gleicher Höhe abgeschlossen.
Lage
Das Haus befindet sich in der Sigmaringen Straße von Ostrach. In unmittelbarer Umgebung befindet sich das Zentrum von Ostrach mit allen gängigen Einkaufsläden zum täglichen Bedarf.
Die Wohnung
Bezug
nach Vereinbarung
Wohnanlage
Energie & Heizung
Warum sehe ich diese Anzeige? – Du siehst diese Anzeige basierend auf Ihrer Navigation auf unserer Website und den Suchkriterien, die du verwendet hast.
Energieausweistyp
Verbrauchsausweis
Gebäudetyp
Wohngebäude
Wesentliche Energieträger
Gas
Gültigkeit
16.02.2026 bis 15.02.2036
Effizienzklasse
C
Endenergieverbrauch
76,20 kWh/(m²·a)
Weitere Energiedaten
Energieträger
Gas
Heizungsart
Zentralheizung
Details
Objektbeschreibung
Im Zentrum von Ostrach befindet sich diese außergewöhnlich großzügige und hochwertig ausgestattete 4-Zimmer-Doppelhaushälfte, die im Jahr 2021 aus einem ehemaligen Ladenlokal in Wohnraum umgewandelt wurde. Die Einheit überzeugt durch ihre beeindruckenden Flächen, eine zeitgemäße technische Ausstattung sowie ein stimmiges...
Ausstattung
Kurzüberblick - wichtigste Merkmale
* Zentrale Lage im Ortskern von Ostrach
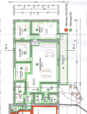
* Großzügige 4-Zimmer-Doppelhaushälfte
* Wohnfläche ca. 178 m²
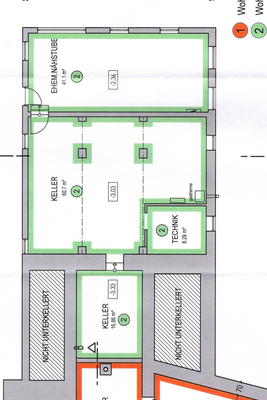
* Zusätzliche Nutzfläche im UG ca. 126,95 m²
* Beheizter Hobbyraum im UG mit ca. 41 m²
* Sehr großer Kellerbereich + Dachspitz mit viel Stauraum
* Umbau von Ladenlokal...
Preisinformation
7 Stellplätze
Weitere Informationen
Sonstiges
Alle Objektangaben beruhen auf Mitteilungen der Eigentümer. Eine Haftung für deren Richtigkeit wird nicht übernommen. Bauunterlagen mit Genehmigungen, Pläne und Grundrisse vom Objekt liegen vor. Besichtigungen und Verhandlungen erfolgen ausschließlich über Frank Immobilien. Das Angebot ist freibleibend...
Anbieter der Immobilie
Frank Immobilien
Hauptstraße 28, 88356 Ostrach

Online-ID: 2nlnj5j
Referenznummer: MF1117V
Finde Angebote wie dieses
Hier geht es zu unserem Impressum, den Allgemeinen Geschäftsbedingungen, den Hinweisen zum Datenschutz und nutzungsbasierter Online-Werbung.