

HausBauHaus GmbH
086 ···
Nr. anzeigenPreise & Kosten
zzgl. Nebenkosten
Kaution
3 Monatskaltmieten
Provision für Mieter
provisionsfrei
Warum sehe ich diese Anzeige? – Du siehst diese Anzeige basierend auf Ihrer Navigation auf unserer Website und den Suchkriterien, die du verwendet hast.
Lage
#Standort
Der oberbayerische Luftkurort Rimsting befindet sich im Landkreis Rosenheim, in unmittelbarer Nähe zum Chiemsee, zwischen den Kurorten Prien am Chiemsee (3 km) und Bad Endorf (5 km). Rimsting liegt im Herzen der Euregio Inntal - Chiemsee - Kaisergebirge - Mangfalltal und somit im Zentrum der "Super-Region Alpine...
Büro-/Praxisfläche
Kategorie
Praxisfläche
Baujahr
2023
Bezug
Nach Vereinbarung
Details
Objektbeschreibung
GEWERBEHAUS NORDSTRASSE
#Programm und Nutzung
Das Gewerbehaus an der Nordstraße bietet Platz für insgesamt 6 Nutzungseinheiten und unterschiedlichste Betriebsformen und Firmengrößen. Die effiziente Grundrissgestaltung ermöglicht die Umsetzung zwei verschiedener Grundrisskonzepte, zwischen 360 m² und 740 m². Die...
Ausstattung
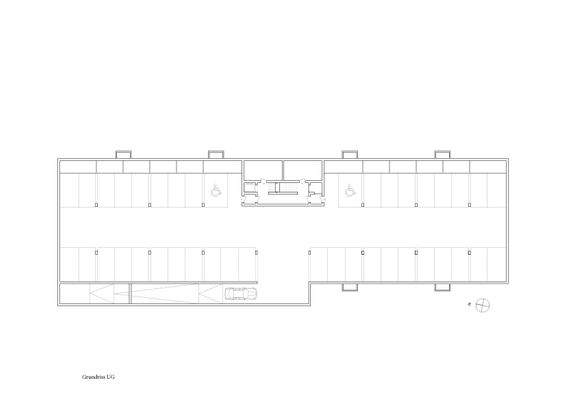
* Gliederung: Geschlossener Baukörper mit zentraler Erschließung und Tiefgarage
* Außenmauern: Brüstungsband aus Beton (Sichtbeton im Innenraum) mit hinterlüfteter Holzfassade (schwarz pigmentiert, Schalung horizontal)
* Raumhöhen: EG: 2,75 m | OG1- OG2: 2,75 - 3,90 m
* Fenster: Hochwertige Holzfenster...
Preisinformation
7 Garagenstellplätze, Miete je: 60,00 EUR
Nebenkosten pro qm: 2,50 EUR
Weitere Informationen
Sonstiges
Gerne stellen wir Ihnen diese außergewöhnliche Immobilie näher vor. Rufen Sie uns an oder schreiben uns. Wir freuen uns auf Sie!
Sämtliche Visualierungen der Gewerbeeinheiten sowie des Gesamtgebäudes und der Umgebung sind unverbindiche Darstellungen aus der Sicht des...
Anbieter der Immobilie
Online-ID: 2nlnf5s
Referenznummer: 7422#ZRODuS
Finde Angebote wie dieses
Hier geht es zu unserem Impressum, den Allgemeinen Geschäftsbedingungen, den Hinweisen zum Datenschutz und nutzungsbasierter Online-Werbung.