

DAHLER Potsdam | Berlin-Wannsee | Kleinmachnow
Herr Christian Aschenbeck
033 ···
Nr. anzeigenPreise & Kosten
Provision für Käufer
2,38% inkl. MwSt. bezogen auf den beurkundeten Kaufpreis
Lage
Located directly on Jungfernsee lake, on a small hill, a completely new district has been built here in recent years - "Belvedere Jungfernsee." The residential area on Jungfernsee covers around 15 hectares, divided into 150 building plots between 600 and 2,000 m². Extravagant villas and spacious single-family homes...
Das Haus
Kategorie
Einfamilienhaus
Baujahr
2016
Energie & Heizung
Warum sehe ich diese Anzeige? – Du siehst diese Anzeige basierend auf Ihrer Navigation auf unserer Website und den Suchkriterien, die du verwendet hast.
Energieausweistyp
Verbrauchsausweis
Gebäudetyp
Wohngebäude
Wesentliche Energieträger
FERN
Gültigkeit
bis 15.02.2036
Effizienzklasse
B
Endenergieverbrauch
69,40 kWh/(m²·a)
Weitere Energiedaten
Energieträger
Fernwärme
Heizungsart
Fußbodenheizung, offener Kamin
Details
Objektbeschreibung
Located in one of Potsdam's most sought-after residential areas, in the exclusive Belvedere Jungfernsee neighborhood, this extremely well-maintained single-family home is a modern home for discerning owner-occupiers. The quiet, family-friendly environment, the immediate proximity to nature, and the excellent connections to...
Ausstattung
. Well-maintained single-family home in the exclusive residential area of Belvedere Jungfernsee
. Built in 2016 using solid construction methods
. High-quality brick cladding on the exterior façade
. Spacious plot with an area of approx. 1,010 m²
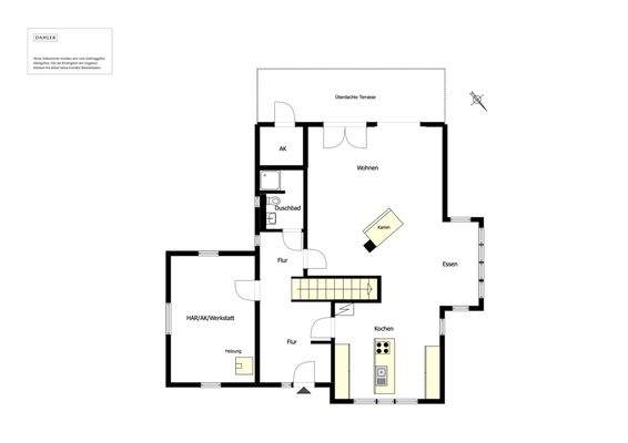
. Living space of approx. 218 m² on two levels
. Functional and...
Preisinformation
1 Carportplatz
Weitere Informationen
Sonstiges
Your assets are in good hands with us
DAHLER specializes in brokering high-quality residential properties in prime locations. Our company has been managed by Kirsten and Björn Dahler for over 30 years and sets standards in the industry with its innovative strength and quality of service. Our more than 90...
Anbieter der Immobilie

Online-ID: 2nllm5j
Referenznummer: D-POT8901-ENG
Finde Angebote wie dieses
Hier geht es zu unserem Impressum, den Allgemeinen Geschäftsbedingungen, den Hinweisen zum Datenschutz und nutzungsbasierter Online-Werbung.