
Riverside Real Estate GmbH
Herr Karim El Yazidi
004 ···
Nr. anzeigenPreise & Kosten
Provision für Käufer
3,57 % inkl. 19 % MwSt.
Lage
Das Neubauprojekt befindet sich in Rheinfelden (Baden) und überzeugt durch eine ruhige, familienfreundliche Wohnatmosphäre mit hervorragender Anbindung an die regionale Infrastruktur.
Als Teil des attraktiven Südbadens liegt Rheinfelden unmittelbar an der Schweizer Grenze - nur etwa 15 Kilometer östlich von Basel und...
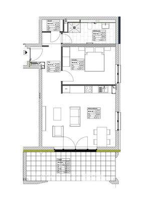
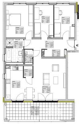
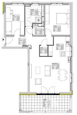
Die Wohnung
Wohnungslage
Souterrain
Wohnanlage
Energie & Heizung
Warum sehe ich diese Anzeige? – Du siehst diese Anzeige basierend auf Ihrer Navigation auf unserer Website und den Suchkriterien, die du verwendet hast.
Energieausweis: für diesen Gebäudetyp nicht notwendig
Weitere Energiedaten
Heizungsart
Luft-/Wasser-Wärmepumpe
Details
Objektbeschreibung
In zwei modernen Mehrfamilienhäusern entstehen exklusive Eigentumswohnungen, die höchste Ansprüche an Komfort, Nachhaltigkeit und Wirtschaftlichkeit erfüllen. Mit einer geplanten Fertigstellung im zweiten Quartal 2026 bietet dieses Objekt nicht nur Planungssicherheit, sondern auch die Möglichkeit, ein zukunftsorientiertes...
Ausstattung
- Fertigstellung Q2 2026
- Wohnflächen zwischen 66 - 133 m²
- 2- bis 4,5-Zimmer-Wohnungen
- Kaufpreis ab 325.740 €
- Eigene Terrasse oder Balkon
- Große Gartenanlage
- Aufzug: barrierefreier Zugang zu allen Etagen
- Hochwertiges Parkett, Fliesen und Sanitär
-...
Preisinformation
1 Tiefgaragenstellplatz, Kaufpreis: 20.000,00 EUR
Weitere Informationen
Sonstiges
Die Riverside Real Estate GmbH bietet Immobilien aller Assetklassen zum Verkauf an, mit Standorten in Hameln-Pyrmont, Hannover, Bremen und Umgebung. Zudem sind wir Exklusivpartner für die Vermarktung hochwertiger Immobilien in Österreich.
Wenn Sie mehr über uns erfahren möchten, besuchen Sie gerne unsere...
Anbieter der Immobilie
Riverside Real Estate GmbH
Erichstr. 16, 31785 Hameln
Online-ID: 2nll75y
Referenznummer: 2026-557
Finde Angebote wie dieses
Hier geht es zu unserem Impressum, den Allgemeinen Geschäftsbedingungen, den Hinweisen zum Datenschutz und nutzungsbasierter Online-Werbung.