
Immobilien Ingo Schmidt
Herr Ingo Schmidt
049 ···
Nr. anzeigenPreise & Kosten
Provision für Käufer
2,38
Lage
Das Grundstück befindet sich in einem ruhigen Stadtteil von Weener, einer Kleinstadt im Landkreis Leer in Niedersachsen. Der Stadtteil ist geprägt von gepflegten Vorgärten und freundlichen Nachbarn. In Weener befinden sich verschiedene Einkaufsmöglichkeiten. Schulen und Kindergärten sind vor Ort. Auch die Anbindung an...
Die Immobilie
Zu diesem Angebot wurden vom Anbieter keine weiteren Daten hinterlegt. Für weitere Informationen bitte den Anbieter kontaktieren.
Nach Informationen fragenDetails
Objektbeschreibung
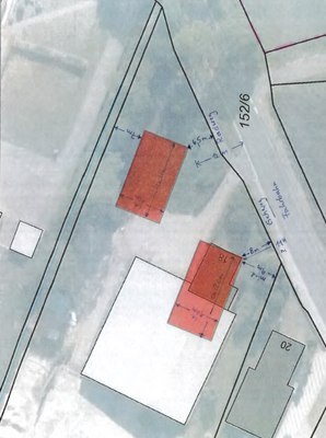
Ihr Traum vom Eigenheim beginnt hier - Grundstück in Stapelmoor zu verkaufen!
Sie suchen ein passendes Grundstück für den Bau Ihres Ein- oder Zweifamilienhauses? - Dann finden Sie in Stapelmoor das Richtige!
Auf einem großzügigen Bauplatz stehen Ihnen zwei Grundstücke mit einer Gesamtfläche von ca. 12.700?m² zur...
Weitere Informationen
Sonstiges
Das Angebot ist freibleibend und unverbindlich. Es wurde nach den Angaben des Verkäufers erstellt. Zwischenverkauf und Irrtum sind vorbehalten. Eine Weitergabe an Dritte ist nicht gestattet.
Bitte haben Sie Verständnis dafür, dass es bei einer erhöhten Anfrage zu einem Bieterverfahren kommen kann.
Anbieter der Immobilie
Immobilien Ingo Schmidt
Norderstraße 19, 26826 Weener
Online-ID: 2nlkz5z
Referenznummer: 026-6605
Finde Angebote wie dieses
Hier geht es zu unserem Impressum, den Allgemeinen Geschäftsbedingungen, den Hinweisen zum Datenschutz und nutzungsbasierter Online-Werbung.