

Jan Schmolke Immobilien & Investments
Frau Marleen Mannott
004 ···
Nr. anzeigenPreise & Kosten
Kaution
5.250,00
Warum sehe ich diese Anzeige? – Du siehst diese Anzeige basierend auf Ihrer Navigation auf unserer Website und den Suchkriterien, die du verwendet hast.
Lage
Die Immobilie befindet sich in äußerst attraktiver Innenstadtlage von Oldenburg, in der begehrten Staulinie. Diese zentrale Adresse verbindet urbanes Leben mit einer hervorragenden Infrastruktur und kurzen Wegen zu sämtlichen Einrichtungen des täglichen Bedarfs.
Die Oldenburger Innenstadt mit ihren vielfältigen...
Die Wohnung
Wohnungslage
1. Geschoss
Bezug
nach Absprache
Wohnanlage
Energie & Heizung
Warum sehe ich diese Anzeige? – Du siehst diese Anzeige basierend auf Ihrer Navigation auf unserer Website und den Suchkriterien, die du verwendet hast.
Energieausweistyp
Bedarfsausweis
Gebäudetyp
Wohngebäude
Baujahr laut Energieausweis
2006
Wesentliche Energieträger
GAS
Gültigkeit
bis 22.09.2031
Effizienzklasse
E
Endenergiebedarf
151,20 kWh/(m²·a)
Weitere Energiedaten
Energieträger
Gas
Heizungsart
Etagenheizung
Details
Objektbeschreibung
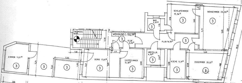
Diese weitläufige 5-Zimmer-Wohnung mit ca. 165 m² Wohnfläche befindet sich in attraktiver Innenstadtlage und bietet vielfältige Nutzungsmöglichkeiten - insbesondere für eine Wohngemeinschaft oder Paare.
Bereits beim Betreten überzeugt die Wohnung durch ihre großzügige Raumaufteilung und das angenehme Wohngefühl. Zwei...
Ausstattung
- 5 Zimmer
- renovierter Zustand
- 1. Obergeschoss
- ca. 165m²
- 1 Badezimmer mit Dusche, WC und Waschbecken
- 1 Balkon mit angrenzendem "Teehäuschen"
- 1 Küche ohne EBK (muss selbst eingebaut werden)
- keine Haustiere erwünscht
- WG Nutzung oder Paare
- verfügbar nach Absprache
-...
Weitere Informationen
Sonstiges
Wir freuen uns auf Ihre schriftliche Anfrage. Bitte füllen Sie die Kontaktdaten vollständig aus. Um Ihre Anfrage schnell und fachgerecht beantworten zu können benötigen wir Ihren vollständigen Namen, Ihre E-Mail Adresse, eine Telefonnummer unter der wir Sie erreichen können und Ihre Adresse.
WICHTIG...
Anbieter der Immobilie

Online-ID: 2nlkq5x
Referenznummer: 1287
Finde Angebote wie dieses
Hier geht es zu unserem Impressum, den Allgemeinen Geschäftsbedingungen, den Hinweisen zum Datenschutz und nutzungsbasierter Online-Werbung.