

Johannes Mandel Neubauplanung als freier Handelsvertreter für die LivingHaus Fertighaus GmbH
Herr Johannes Mandel
015 ···
Nr. anzeigenPreise & Kosten
Provision für Käufer
Bitte beachte, das Angebot kann bei Vertragsabschluss die Zahlung einer Provision beinhalten. Weitere Informationen erhältst Du vom Anbieter.
Lage
Bielefeld bietet dir eine ausgezeichnete Lebensqualität mit einer Vielzahl an Bildungseinrichtungen, Gesundheitsangeboten und Freizeitmöglichkeiten. In der Umgebung findest du zahlreiche Schulen und Kindergärten, die für Familien besonders attraktiv sind. Die Grundschule am Teutoburger Wald und das Gymnasium am Waldhof...
Das Haus
Kategorie
Einfamilienhaus
Energie & Heizung
Warum sehe ich diese Anzeige? – Du siehst diese Anzeige basierend auf Ihrer Navigation auf unserer Website und den Suchkriterien, die du verwendet hast.
Weitere Energiedaten
Haustyp
KfW 55
Details
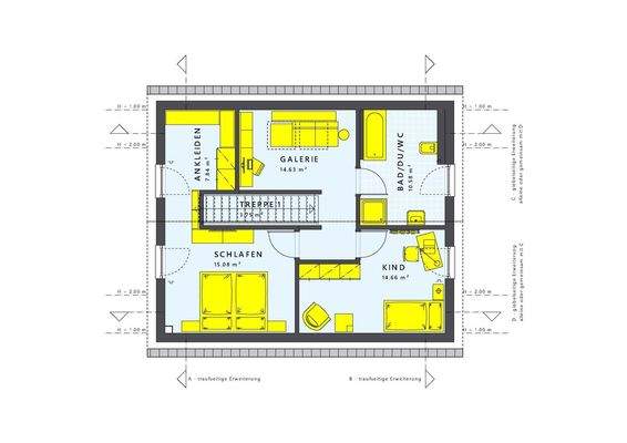
Objektbeschreibung
Willkommen in deinem zukünftigen Zuhause in Bielefeld! Dieses moderne Einfamilienhaus mit einer großzügigen Wohnfläche von 125 m² und einem einladenden Grundstück von 520 m² bietet dir die perfekte Grundlage für ein Leben in Harmonie und Komfort. Das klassische Satteldach mit einer Neigung von 38 Grad verleiht dem Haus nicht...
Ausstattung
Dein zukünftiges Zuhause wird mit einer Vielzahl an hochwertigen Ausstattungen versehen, die deinen Wohntraum perfekt unterstreichen. Dazu gehören eine individuell geplante Traumküche mit modernster Technik und cleveren Stauraumlösungen, die rechtzeitig zum Einzug geliefert wird. Die Grundausstattung umfasst moderne Böden...
Weitere Informationen
Sonstiges
Der Grundstückspreis ist im Anzeigenpreis bereits enthalten.
Das Grundstück erwerben Sie direkt vom Eigentümer über einen Makler.
Ein Träumchen an Grundstück. :-)
Heimkommen - ankommen - herunterkommen - wohlfühlen
Vereinbaren Sie gleich Ihren persönlichen Beratungstermin und sichern Sie sich...
Anbieter der Immobilie
Johannes Mandel Neubauplanung als freier Handelsvertreter für die LivingHaus Fertighaus GmbH
Urbachstraße 26, 35099 Bottendorf

Online-ID: 2nlkn5u
Referenznummer: 30777-1248
Finde Angebote wie dieses
Hier geht es zu unserem Impressum, den Allgemeinen Geschäftsbedingungen, den Hinweisen zum Datenschutz und nutzungsbasierter Online-Werbung.