

bk-Jochen Blumer
Herr/Frau Jochen Blumer
077 ···
Nr. anzeigenPreise & Kosten
Provision für Käufer
provisionsfrei
Lage
Gaienhofen-Horn liegt idyllisch auf der Halbinsel Höri am westlichen Bodensee und zählt zu den besonders beliebten Wohnlagen der Region. Der Ort verbindet naturnahes Wohnen mit hoher Lebensqualität und ist ideal für Familien, die Ruhe, Natur und die Nähe zum Wasser schätzen.
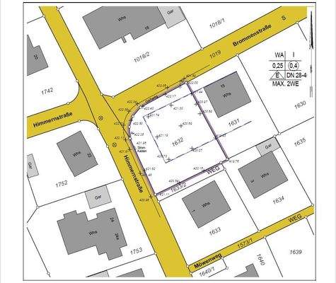
Das Grundstück befindet sich in attraktiver...
Das Haus
Kategorie
Einfamilienhaus
Energie & Heizung
Warum sehe ich diese Anzeige? – Du siehst diese Anzeige basierend auf Ihrer Navigation auf unserer Website und den Suchkriterien, die du verwendet hast.
Weitere Energiedaten
Heizungsart
Fußbodenheizung, Luft-/Wasser-Wärmepumpe
Details
Objektbeschreibung
Traumhaus mit viel Platz für Ihre Familie - Willkommen in Ihrem zukünftigen Zuhause!
In begehrter Lage von Gaienhofen-Horn, nur etwa 700 Meter vom Seeufer entfernt, planen wir auf einem 634 m² großen Grundstück den Bau dieses hochwertigen Einfamilienhauses mit rund 156 m² Wohnfläche. Das Haus mit Zwerchgiebel und...
Ausstattung
Highlights auf einen Blick:
- QNG zertifizierbar
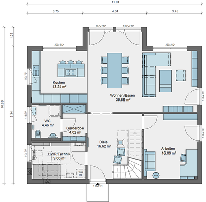
- großzügiger Wohn- und Essbereich
- Gäste-WC und Gäste-/Arbeitszimmer im
Erdgeschoss
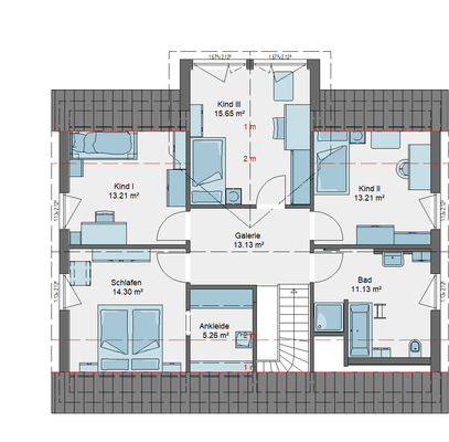
- 4 Schlafzimmer auf einer Etage im Obergeschoss
- Badezimmer mit Dusche und Badewanne
- Elternschlafzimmer verfügt über eine eigene
Ankleide
- effiziente...
Weitere Informationen
Sonstiges
Die projektierte Doppelhaushälfte ist QNG zertifizierbar. Somit ist für Sie (Familie mit 1-2 Kinder) die höchste Förderstufe der KfW-Förderung "Wohneigentum für Familien" möglich und Sie profitieren von zinsgünstigen Krediten, die Ihnen die Finanzierung noch einmal zusätzlich erleichtern. Ob für Sie weitere...
Anbieter der Immobilie
bk-Jochen Blumer
Föhrenweg 3, 78315 Radolfzell am Bodensee

Online-ID: 2nljx5s
Referenznummer: 376
Finde Angebote wie dieses
Hier geht es zu unserem Impressum, den Allgemeinen Geschäftsbedingungen, den Hinweisen zum Datenschutz und nutzungsbasierter Online-Werbung.