
Stark Immobilien
Herr Andreas Stark
+49 ···
Nr. anzeigenPreise & Kosten
Provision für Käufer
3,57 % inl. USt vom notariellen Kaufpreis
Lage
Das Objekt befindet sich in einer ruhigen Wohngegend im Stadtzentrum auf der Stresemann Str. 23 in 08523 Plauen. Auf der Straße befinden sich diverse kleine Läden und das Zentrum ist Fußläufig erreichbar.
Das Haus
Kategorie
Einfamilienhaus
Geschosse
2 Geschosse (Dachgeschoss)
Baujahr
2000
Derzeitige Nutzung
frei
Energie & Heizung
Warum sehe ich diese Anzeige? – Du siehst diese Anzeige basierend auf Ihrer Navigation auf unserer Website und den Suchkriterien, die du verwendet hast.
Energieausweistyp
Bedarfsausweis
Gebäudetyp
Wohngebäude
Baujahr laut Energieausweis
2000
Gültigkeit
14.03.2025 bis 13.03.2035
Effizienzklasse
B
Endenergiebedarf
51,60 kWh/(m²·a)
Weitere Energiedaten
Haustyp
Massivhaus, Niedrigenergiehaus
Energieträger
Gas, Solar
Heizungsart
Fußbodenheizung, Ofen, offener Kamin, Zentralheizung
Details
Objektbeschreibung
Kellergeschoss:
nicht unterkellert
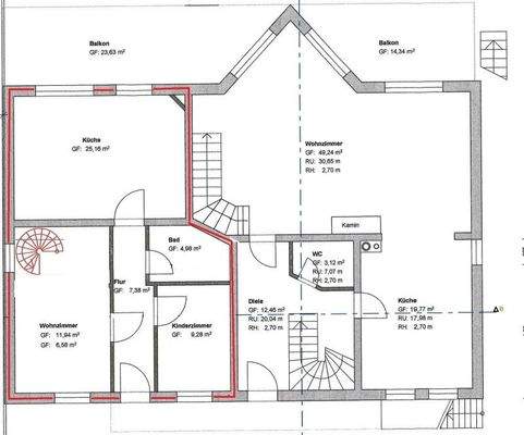
Erdgeschoss:
angebautes Lager, große Garage mit Werkstatt, ein großes Büro, Küche mit EBK, Badezimmer, Gäste WC, Heizungsraum, großer Aufenthaltsraum und ein Abstellraum.
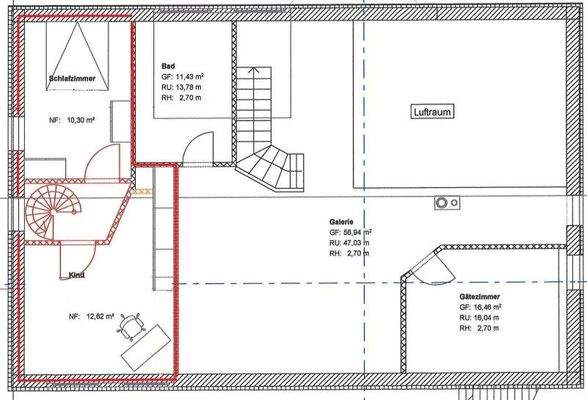
1.Obergeschoss:
Einlegerwohnung: ca. 82,00 m²
Als vier Zimmerwohnung maisonette mit großem...
Weitere Informationen
Beurteilung
Es handelt sich hier um ein zweigeschossiges Einfamilienhaus mit ca.142,00 m² Wohnfläche und mit einer Einlegerwohnung ca. 101,45 m² Wohnfläche und einem im Erdgeschoss befindlichen Büro mit ca. 142,00 m² Nutzfläche, einer großen Garage, einem Abstellraum und einer großen Werkstatt, welches in massiver...
Anbieter der Immobilie
Stark Immobilien
Annenstr.27, 08523 Plauen
Online-ID: 2nlgm5b
Referenznummer: 803 EFH
Finde Angebote wie dieses
Hier geht es zu unserem Impressum, den Allgemeinen Geschäftsbedingungen, den Hinweisen zum Datenschutz und nutzungsbasierter Online-Werbung.