
VON POLL IMMOBILIEN Bruchsal - Milan Vasic
Herr Adrian Götter
004 ···
Nr. anzeigenPreise & Kosten
Provision für Käufer
Käuferprovision beträgt 3,57 % (inkl. MwSt.) des beurkundeten Kaufpreises
Lage
Die angebotenen Wohnungen befinden sich in ruhiger und gewachsener Wohnlage von Ubstadt-Weiher, im charmanten Ortsteil Zeutern.
Zeutern zeichnet sich durch seine idyllische, ländlich geprägte Umgebung aus und bietet gleichzeitig eine sehr gute Anbindung an das regionale Verkehrsnetz. Über die nahegelegene B3 sowie die...
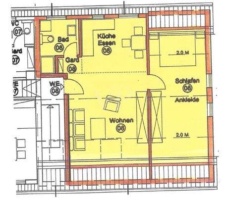
Die Wohnung
Wohnanlage
Energie & Heizung
Warum sehe ich diese Anzeige? – Du siehst diese Anzeige basierend auf Ihrer Navigation auf unserer Website und den Suchkriterien, die du verwendet hast.
Energieausweistyp
Verbrauchsausweis
Gebäudetyp
Wohngebäude
Baujahr laut Energieausweis
2008
Wesentliche Energieträger
GAS
Gültigkeit
bis 26.05.2033
Effizienzklasse
B
Endenergieverbrauch
62,80 kWh/(m²·a)
Weitere Energiedaten
Energieträger
Gas
Details
Objektbeschreibung
Zum Verkauf steht ein attraktives Wohnungspaket mit drei vermieteten Einheiten im beliebten Ortsteil Zeutern der Gemeinde Ubstadt-Weiher im Kraichgau. Die Wohnungen befinden sich in gepflegten Wohnhäusern in gewachsener Umgebung und bieten eine solide Vermietungssituation mit zuverlässigen Mietern.
Die Kombination aus...
Ausstattung
Wirtschaftliche Kennzahlen
Monatliche Gesamtkaltmiete:
2.200 €
Jahresnettokaltmiete:
26.400 €
Gesamtwohnfläche:
ca. 235 m²
Stabile Vermietungssituation:
Alle Wohnungen sind aktuell vermietet.
Mietsteigerungspotenzial:
Teilweise vorhanden (z. B. gemäß Mietspiegel).
Preisinformation
2 Stellplätze
1 Garagenstellplatz
Weitere Informationen
Sonstiges
GELDWÄSCHE: Als Immobilienmaklerunternehmen ist die von Poll Immobilien GmbH nach § 2 Abs. 1 Nr. 14 und § 11 Abs. 1, 2 Geldwäschegesetz (GwG) dazu verpflichtet, bei der Begründung einer Geschäftsbeziehung die Identität des Vertragspartners festzustellen und zu überprüfen, bzw. sobald ein ernsthaftes Interesse an...
Anbieter der Immobilie
VON POLL IMMOBILIEN Bruchsal - Milan Vasic
Bahnhofstraße 1, 76646 Bruchsal
Online-ID: 2nlg45y
Referenznummer: 26 204 007
Finde Angebote wie dieses
Hier geht es zu unserem Impressum, den Allgemeinen Geschäftsbedingungen, den Hinweisen zum Datenschutz und nutzungsbasierter Online-Werbung.