
Antaris Immobilien GmbH
Herr Felix Reinhardt
+49 ···
Nr. anzeigenPreise & Kosten
Provision für Käufer
3,57 % der Kaufpreissumme inkl. MwSt. vom Käufer
Lage
Die Stadt Weißensee liegt verkehrsgünstig im Norden Thüringens und zeichnet sich durch seine hervorragende Anbindung an wichtige Verkehrsachsen aus.
Wießensee ist direkt an der Bundesstraße B4 gelegen, welche eine schnelle Verbindung zu den benachbarten Großstädten Erfurt (ca. 30 km) und Sondershausen (ca. 15 km)...
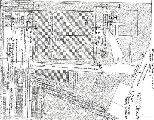
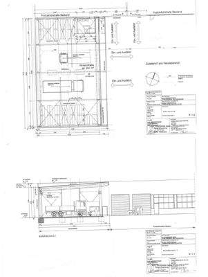
Die Industriefläche
Kategorie
Lagerhalle
Baujahr
1990
Bezug
nach Vereinbarung
Energie & Heizung
Warum sehe ich diese Anzeige? – Du siehst diese Anzeige basierend auf Ihrer Navigation auf unserer Website und den Suchkriterien, die du verwendet hast.
Wärme
Strom
Energieausweistyp
Verbrauchsausweis
Gebäudetyp
Nicht-Wohngebäude
Baujahr laut Energieausweis
1992
Wesentliche Energieträger
Erdgas schwer
Gültigkeit
seit 19.12.2025
Endenergieverbrauch (Wärme)
108,60 kWh/(m²·a)
Endenergieverbrauch (Strom)
70,20 kWh/(m²·a)
Details
Objektbeschreibung
Zum Verkauf steht eine vielseitig nutzbare Produktionshalle mit einer Nutzfläche von ca. 2.000 m², die sich auf einem ca. 15.000 m² großen Grundstück befindet.
Die gesamte Liegenschaft ist aktuell vermietet und generiert 102.000,00 EUR Nettokaltmiete p.a.
Das gedämmte Flachdach wurde im Jahr 2014 saniert...
Weitere Informationen
Stichworte
Sonstiges/Wohnen: Einliegerwohnung
Anbieter der Immobilie
Online-ID: 2nlf65n
Referenznummer: VK42/G1
Finde Angebote wie dieses
Hier geht es zu unserem Impressum, den Allgemeinen Geschäftsbedingungen, den Hinweisen zum Datenschutz und nutzungsbasierter Online-Werbung.