
Deutsche Bank Immobilien GmbH
Frau Safiye Arslanbas
017 ···
Nr. anzeigenPreise & Kosten
Provision für Käufer
4,76 % inkl. MwSt.
Lage
Der Ortsteil Weiler gehört zur Gemeinde Pfaffenhofen (Baden-Württemberg) und liegt inmitten einer idyllischen, naturnahen Umgebung.
Kindergarten, Grundschule und Einkaufsmöglichkeiten befinden sich in der näheren Umgebung. Durch die verkehrsgünstige Lage sind die Nachbarorte sowie Heilbronn und Ludwigsburg gut...
Die Immobilie
Zu diesem Angebot wurden vom Anbieter keine weiteren Daten hinterlegt. Für weitere Informationen bitte den Anbieter kontaktieren.
Nach Informationen fragenDetails
Objektbeschreibung
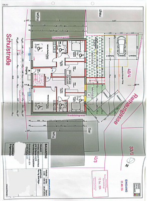
Zum Verkauf steht ein Baugrundstück mit einer Fläche von ca. 367 m² in ruhiger und gewachsener Wohnlage von Pfaffenhofen-Weiler.
Auf dem Grundstück befindet sich derzeit ein Abrissobjekt, für dessen Rückbau bereits eine entsprechende Neubauplanung vorliegt.
Ein genehmigter Bauantrag für ein Mehrfamilienhaus mit...
Ausstattung
Grundstücksgröße: ca. 367 m²
Altbestand mit Abrissgenehmigung
Genehmigter Bauantrag für ein 6-Familienhaus
Voll erschlossen
Sofort bebaubar
Ruhige Wohnlage mit guter Infrastruktur
Weitere Informationen
Sonstiges
Alle im Exposé enthaltenen Angaben basieren auf den Aussagen des Eigentümers.
Sämtliche Daten dieses Exposés wurden mit der erforderlichen Sorgfalt auf Basis von Angaben Dritter, insbesondere der Eigentümer zusammengestellt. Eine Verantwortlichkeit für die Richtigkeit und Vollständigkeit dieser Angaben kann...
Anbieter der Immobilie
Deutsche Bank Immobilien GmbH
Turmstraße 3, 73230 Kirchheim unter Teck
Online-ID: 2nlel5q
Referenznummer: 44300105-124849
Finde Angebote wie dieses
Hier geht es zu unserem Impressum, den Allgemeinen Geschäftsbedingungen, den Hinweisen zum Datenschutz und nutzungsbasierter Online-Werbung.