

Werner Doll Immobilien
Frau Julia Denis
015 ···
Nr. anzeigenPreise & Kosten
Provision für Käufer
5,95 % inkl. MwSt.
Lage
Das angebotene Baugrundstück befindet sich im Kieler Weg 38 in einem gewachsenen und ruhigen Wohngebiet von Delmenhorst. Die Umgebung ist geprägt von gepflegter Ein- und Mehrfamilienhausbebauung und bietet eine angenehme, familienfreundliche Wohnatmosphäre.
Trotz der ruhigen Lage profitieren Sie von einer sehr guten...
Das Grundstück
Energie & Heizung
Warum sehe ich diese Anzeige? – Du siehst diese Anzeige basierend auf Ihrer Navigation auf unserer Website und den Suchkriterien, die du verwendet hast.
Energieausweis: für diesen Gebäudetyp nicht notwendig
Details
Objektbeschreibung
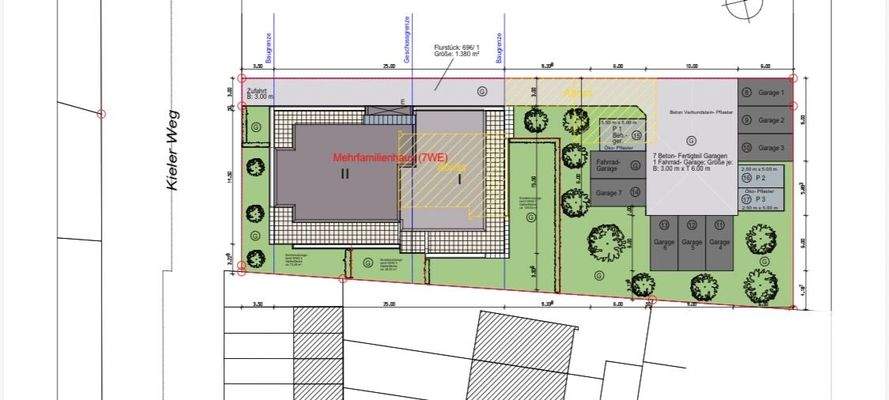
Zum Verkauf steht ein attraktives Baugrundstück mit einer großzügigen Fläche von ca. 1.380 m² in begehrter Lage von Delmenhorst (Kieler Weg 38, 27751).
Das Grundstück überzeugt durch seine ruhige Wohnlage, kombiniert mit einer gleichzeitig sehr guten zentralen Anbindung – eine ideale Voraussetzung für nachhaltige...
Ausstattung
Kurzmerkmale auf einen Blick
-Grundstücksgröße: ca. 1.380 m²
-Lage: Kieler Weg 38, 27751 Delmenhorst
-Ruhige & zentrale Wohnlage
-Baugrundstück – sofort bebaubar (Abriss bereits erfolgt)
-Baugenehmigung vorhanden für:
Mehrfamilienhaus mit 7 Wohneinheiten
7 Garagen
3...
Anbieter der Immobilie
Werner Doll Immobilien
August-Wilhelm-Kühnholz-Str. 5, 26135 Oldenburg

Online-ID: 2nleh5r
Finde Angebote wie dieses
Hier geht es zu unserem Impressum, den Allgemeinen Geschäftsbedingungen, den Hinweisen zum Datenschutz und nutzungsbasierter Online-Werbung.