
Tetik Immobilien GmbH
Marcel Pforte
004 ···
Nr. anzeigenPreise & Kosten
Provision für Käufer
3,57
Lage
Feldberg-Altglashütten liegt im südlichen Schwarzwald auf rund 1.000 Metern Höhe und gehört zur Gemeinde Feldberg, der höchstgelegenen Ortschaft Deutschlands. Der Ortsteil befindet sich in einem ruhigen Hochtal, umgeben von dichten Wäldern, sanften Bergkuppen und der typischen Schwarzwaldlandschaft.
Die Lage bietet...
Das Haus
Baujahr
1978
Energie & Heizung
Warum sehe ich diese Anzeige? – Du siehst diese Anzeige basierend auf Ihrer Navigation auf unserer Website und den Suchkriterien, die du verwendet hast.
Weitere Energiedaten
Energieträger
Öl
Heizungsart
Etagenheizung, Ofen, offener Kamin
Details
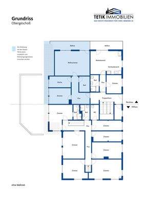
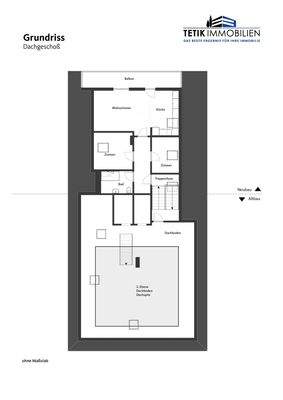
Objektbeschreibung
Dieses außergewöhnliche Wohn- und Geschäftshaus in zentraler Lage von Feldberg Altglashütten vereint Geschichte, Substanz und Entwicklungspotenzial auf beeindruckende Weise. Auf einem großzügigen Grundstück von ca. 1.883 m² treffen ein historischer Altbau, ein moderner Neubau sowie eine flexibel nutzbare Gewerbeeinheit...
Ausstattung
Wohn- und Nutzungskonzept
- Wohn- und Geschäftshaus mit mehreren Wohneinheiten
- Neubau mit 3 Wohneinheiten, aktuell vollständig und fest vermietet
- Altbau derzeit frei nutzbar
- Gewerbeeinheit im Erdgeschoss, aktuell leerstehend
- Nutzung geeignet für Wohnen, Gewerbe oder Kombination aus Eigennutzung und...
Weitere Informationen
Sonstiges
Interessiert? Dann vereinbaren Sie am besten noch heute einen Besichtigungstermin mit uns, dem Team Tetik Immobilien! Wir freuen uns über Ihr Interesse an diesem Objekt. Sehr gerne zeigen wir Ihnen das Mehrfamilienhaus mit Gewerbeeinheit und beraten Sie in allen Fragen rund um den Erwerb. Wir kümmern uns auch um...
Anbieter der Immobilie
Tetik Immobilien GmbH
Lange Straße 103, 79183 Waldkirch
Online-ID: 2nldk54
Referenznummer: TI-710-25
Finde Angebote wie dieses
Hier geht es zu unserem Impressum, den Allgemeinen Geschäftsbedingungen, den Hinweisen zum Datenschutz und nutzungsbasierter Online-Werbung.