
Antaris Immobilien GmbH
Frau Sandy Thorwirth
+49 ···
Nr. anzeigenPreise & Kosten
Provision für Mieter
provisionsfrei
Warum sehe ich diese Anzeige? – Du siehst diese Anzeige basierend auf Ihrer Navigation auf unserer Website und den Suchkriterien, die du verwendet hast.
Lage
In exzellenter Lage an der Gottstedter Landstraße bietet dieser Bürostandort beste Voraussetzungen für Unternehmen mit Anspruch an Effizienz und Sichtbarkeit. Die zentrale Lage in Erfurt, unmittelbar an der A 71 und nahe dem Flughafen Erfurt-Weimar sowie dem etablierten Büropark "Airfurt", gewährleistet eine optimale...
Büro-/Praxisfläche
Kategorie
Bürofläche
Baujahr
1994
Energie & Heizung
Warum sehe ich diese Anzeige? – Du siehst diese Anzeige basierend auf Ihrer Navigation auf unserer Website und den Suchkriterien, die du verwendet hast.
Wärme
Strom
Energieausweistyp
Verbrauchsausweis
Gebäudetyp
Nicht-Wohngebäude
Baujahr laut Energieausweis
2021
Wesentliche Energieträger
Erdgas schwer
Gültigkeit
15.07.2022 bis 15.07.2032
Endenergieverbrauch (Wärme)
170,00 kWh/(m²·a) - Warmwasser enthalten
Endenergieverbrauch (Strom)
239,30 kWh/(m²·a) - Warmwasser enthalten
Details
Objektbeschreibung
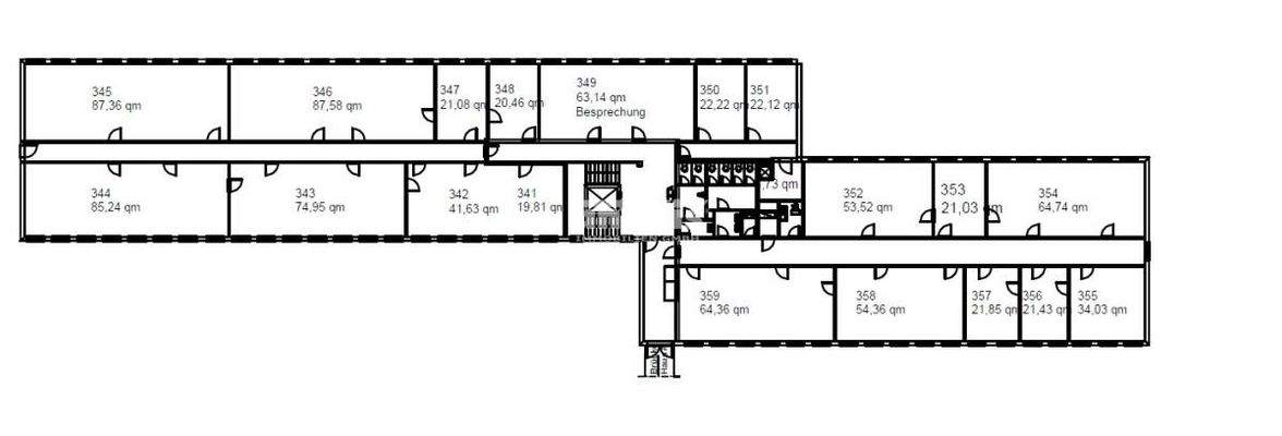
Im ehemaligen Druckzentrum an der Gottstedter Landstraße existieren vielseitig nutzbare Büro- und Gewerbeflächen mit insgesamt ca. 12.500 m². Die beiden Gebäude (Haus A & B) bieten flexible Einheiten ab ca.
500 m² - ideal für individuelle Raumkonzepte und maßgeschneiderte Lösungen. Ob kleinteilig oder großflächig - der...
Ausstattung
- Stellplätze
- Personenaufzüge
- getrennte WC-Bereiche
- flexible Flächengrößen
- praktische Grundrisse
- Stellplätze
- Personenaufzüge
- getrennte WC-Bereiche
- flexible Flächengrößen
- praktische Grundrisse
Weitere Informationen
Sonstiges
Provision
Der Maklervertrag mit der antaris Immobilien GmbH kommt entweder durch eine schriftliche Vereinbarung oder durch die Inanspruchnahme unserer Maklertätigkeit auf Basis der Anforderung des Objekt-Exposés und der beinhalteten Bestimmungen zustande (siehe auch AGB). Abweichend von unseren Allgemeinen...
Anbieter der Immobilie
Online-ID: 2nlcl5k
Referenznummer: VMB59/G2/Eh1
Finde Angebote wie dieses
Hier geht es zu unserem Impressum, den Allgemeinen Geschäftsbedingungen, den Hinweisen zum Datenschutz und nutzungsbasierter Online-Werbung.