
Volksbank Gronau-Ahaus Immobilien GmbH
Herr Ole Bollmann
004 ···
Nr. anzeigenPreise & Kosten
Provision für Käufer
2,975 % inkl. MwSt.
Lage
Die Gemeinde Heek liegt im westlichen Münsterland im Kreis Borken und zeichnet sich durch ihre ruhige, familienfreundliche Umgebung sowie die typisch münsterländische Parklandschaft aus. Die Region ist geprägt von weitläufigen Grünflächen, Feldern und zahlreichen Rad- und Spazierwegen, die eine hohe Lebensqualität und einen...
Das Haus
Kategorie
Einfamilienhaus
Baujahr
1976
Bezug
nach Rücksprache
Energie & Heizung
Warum sehe ich diese Anzeige? – Du siehst diese Anzeige basierend auf Ihrer Navigation auf unserer Website und den Suchkriterien, die du verwendet hast.
Energieausweistyp
Bedarfsausweis
Gebäudetyp
Wohngebäude
Baujahr laut Energieausweis
1999
Gültigkeit
bis 17.05.2030
Effizienzklasse
F
Endenergiebedarf
193,10 kWh/(m²·a)
Weitere Energiedaten
Energieträger
Gas
Heizungsart
offener Kamin
Details
Objektbeschreibung
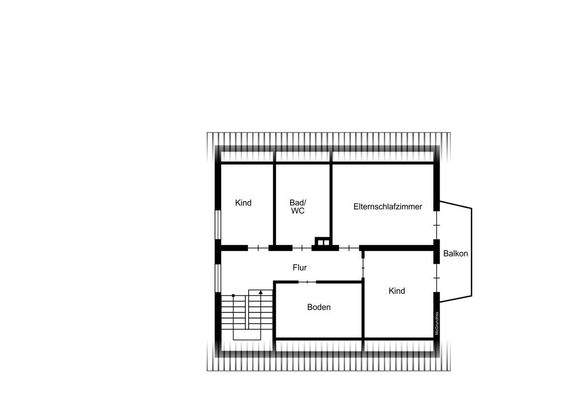
Dieses gepflegte Einfamilienhaus aus dem Baujahr 1976 befindet sich auf einem großzügigen Grundstück mit ca. 522 m² Fläche in ruhiger Wohnlage von Heek. Mit einer Wohnfläche von ca. 114m² bietet das Haus ausreichend Platz für Paare oder Familien, die ein ruhiges Zuhause mit Garten suchen.
Im Erdgeschoss erwartet Sie...
Preisinformation
2 Stellplätze
1 Garagenstellplatz
Weitere Informationen
Sonstiges
Sie interessieren sich für dieses Angebot?
Bitte nehmen Sie Kontakt zu uns auf, falls Sie weitere Informationen oder ein persönliches Beratungsgespräch wünschen.
Wir sind unter der Rufnummer 02562 914 6412 zu erreichen.
Alle Angaben sind nach bestem Wissen und Gewissen gemacht. Der Makler...
Anbieter der Immobilie
Volksbank Gronau-Ahaus Immobilien GmbH
Neustr. 42 - 46, 48599 Gronau
Online-ID: 2nlcd5v
Referenznummer: 8165
Finde Angebote wie dieses
Hier geht es zu unserem Impressum, den Allgemeinen Geschäftsbedingungen, den Hinweisen zum Datenschutz und nutzungsbasierter Online-Werbung.