
Robert Gerber Baureisebegleiter FischerHaus
Herr Robert Gerber
+49 ···
Nr. anzeigenPreise & Kosten
Provision für Käufer
provisionsfrei
Lage
Bessenbach, ein charmantes Wohngebiet, bietet Ihnen eine hervorragende Lebensqualität inmitten einer naturnahen Umgebung. Die ruhige Lage ermöglicht es Ihnen, sich vom Alltagsstress zu erholen und die Idylle der Natur zu genießen. Gleichzeitig profitieren Sie von einer guten Anbindung an die umliegenden Städte, was Ihnen...
Das Haus
Baujahr
2027
Bezug
sofort
Energie & Heizung
Warum sehe ich diese Anzeige? – Du siehst diese Anzeige basierend auf Ihrer Navigation auf unserer Website und den Suchkriterien, die du verwendet hast.
Weitere Energiedaten
Heizungsart
Fußbodenheizung, Luft-/Wasser-Wärmepumpe
Details
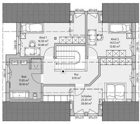
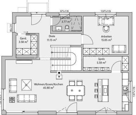
Objektbeschreibung
Erleben Sie ein einzigartiges Wohngefühl in Ihrem neuen Traumhaus, das ganz nach Ihren individuellen Wünschen in Bessenbach realisiert wird. Mit einer großzügigen Wohnfläche von 152 m² und einem einladenden Grundstück von 680 m² bietet dieses Haus ausreichend Platz für die gesamte Familie. Die durchdachte Raumaufteilung...
Ausstattung
Die gehobene Ausstattung dieses Hauses wird Sie begeistern. Die Fußbodenheizung sorgt für eine gleichmäßige und angenehme Wärmeverteilung in allen Räumen und trägt zu einem hohen Wohnkomfort bei. Die Verwendung einer modernen Wärmepumpe als Befeuerungsart ist nicht nur umweltfreundlich, sondern auch kosteneffizient, da sie...
Weitere Informationen
Sonstiges
Ganz gleich ob Sie ein Ausbauhaus, ein technikfertiges oder ein schlüsselfertiges Haus wünschen. Wir erstellen Ihnen ein individuelles Angebot das ganz ihren Wünschen und Vorstellungen entspricht.
Sie haben ein eigenes Grundstück?
Natürlich bieten wir Ihr TRAUMHAUS schnell und zuverlässig auch für Ihr...
Anbieter der Immobilie
Robert Gerber Baureisebegleiter FischerHaus
Steigfeld 3, 63856 Straßbessenbach
Online-ID: 2nlbz5p
Referenznummer: AB19_26
Finde Angebote wie dieses
Hier geht es zu unserem Impressum, den Allgemeinen Geschäftsbedingungen, den Hinweisen zum Datenschutz und nutzungsbasierter Online-Werbung.