

GUTE WERTE Immobilien GmbH
Herr Jürgen Scharp
040 ···
Nr. anzeigenPreise & Kosten
Provision für Käufer
7,14 % Käuferprovision auf den Grundstücksanteil von 80.000,-
Grundstücksanteil 80.000,- Euro, bzw. 92.000,- Euro
Lage
Hartenholm ist ein idyllischer Ort, der sich am südlichen Rand des Segeberger Forstes befindet. Die Umgebung ist ländlich geprägt und bietet zahlreiche Freizeitmöglichkeiten wie Wanderwege und Radwege.
Schulen: Grundschule Hartenholm: Diese befindet sich im Zentrum des Ortes an einer verkehrsberuhigten Straße. Sie...
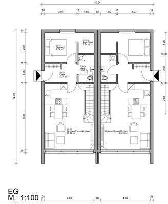
Das Haus
Kategorie
Doppelhaushälfte
Energie & Heizung
Warum sehe ich diese Anzeige? – Du siehst diese Anzeige basierend auf Ihrer Navigation auf unserer Website und den Suchkriterien, die du verwendet hast.
Energieausweis: für diesen Gebäudetyp nicht notwendig
Details
Objektbeschreibung
Neubauvorhaben in Hartenholm. Ihr Grundstück befindet sich am Ende einer Sackgasse in besonders idyllischer Feldrandlage.
Das Grundstück vereint die Ruhe und Schönheit der Natur mit den Annehmlichkeiten einer gut erschlossenen Wohnlage.
Der Garten hat einen schönen Blick in die Natur und bietet Ihnen viel Sonne...
Ausstattung
Das angebotene Gebäude wird als modernes Ausbauhaus in hochwertiger Holzriegelbauweise nach europäischen Qualitätsstandards errichtet. Die Bauweise verbindet nordische Handwerkstradition mit zeitgemäßer Architektur, hoher Energieeffizienz und einem gesunden Wohnklima.
Die tragende Konstruktion besteht aus massivem...
Preisinformation
1 Stellplatz
Weitere Informationen
Sonstiges
Benötigen Sie eine Finanzierung ?
Sprechen Sie uns bitte gerne an, denn wir verfügen über ausgezeichnete Kontakte zu Banken und Finanzierungsvermittlern. Profitieren auch Sie von unseren persönlichen Kontakten und Erfahrungen.
Beabsichtigen Sie Ihre Immobilie zu verkaufen ?
Gerne erstellt...
Anbieter der Immobilie
GUTE WERTE Immobilien GmbH
Ahrensfelder Weg 29a, 22926 Ahrensburg

Online-ID: 2nlbn54
Referenznummer: JS-1100
Finde Angebote wie dieses
Hier geht es zu unserem Impressum, den Allgemeinen Geschäftsbedingungen, den Hinweisen zum Datenschutz und nutzungsbasierter Online-Werbung.