
FALC Real Estate
Herr Christian Meyer
+49 ···
Nr. anzeigenPreise & Kosten
Provision für Käufer
2,42 % des Kaufpreises inkl. MwSt
Lage
Die Immobilie befindet sich in zentraler Lage (am Hauptplatz Tapolca). Alles ist in 1-2 Minuten erreichbar.
Gegenüber der Wohnanlage befindet sich der wunderschöne Malom-See, den Sie in 2-3 Minuten erreichen.
Tapolca ist eine charmante Kleinstadt im westlichen Ungarn und zählt zu den besonderen Geheimtipps nahe dem...
Die Wohnung
Energie & Heizung
Warum sehe ich diese Anzeige? – Du siehst diese Anzeige basierend auf Ihrer Navigation auf unserer Website und den Suchkriterien, die du verwendet hast.
Energieausweis: für diesen Gebäudetyp nicht notwendig
Details
Objektbeschreibung
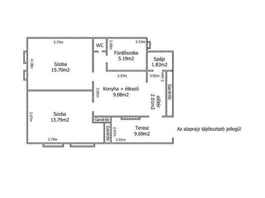
2-Zimmer-Wohnung in Top-Zustand im Stadtzentrum von Tapolca zu verkaufen
- Hervorragend erhaltene Wohnung, 52 m², 2 Zimmer, Flur, Wohnküche, WC, Badezimmer, Speisekammer, 3 Einbauschränke, Terrasse
- 1. OG (ohne Aufzug), letzte Wohnung vorn - kein Durchgang, daher ist der Bereich vor der Wohnung fast eine...
Ausstattung
Komplett
Weitere Informationen
Sonstiges
Sie haben eine Immobilie gefunden und möchten sicher sein, dass Preis und Zustand stimmen?
Gerade im Ausland können überhöhte Preise oder versteckte Mängel auftreten. Unser Bausachverständiger prüft das Objekt vor dem Kauf und hilft, Risiken zu vermeiden.
Denn nach dem Prinzip "gekauft wie gesehen" sind...
Anbieter der Immobilie
FALC Real Estate
Calle Marbella 53, 07610 Palma de Mallorca
Online-ID: 2nlbe5y
Referenznummer: FALC-ChMe-82711
Finde Angebote wie dieses
Hier geht es zu unserem Impressum, den Allgemeinen Geschäftsbedingungen, den Hinweisen zum Datenschutz und nutzungsbasierter Online-Werbung.