
Stadtland Immobilien
Herr Steffen Sigmund
030 ···
Nr. anzeigenPreise & Kosten
Provision für Käufer
provisionsfrei
Lage
Die Immobilie befindet sich in einer ruhigen, schmalen Seitenstraße mit einer seit Jahrzehnten gewachsenen Einfamilienhausbebauung, nur einige Laufminuten von der Oberhavelklinik entfernt. In unmittelbarer Nähe finden Sie Einkaufsmöglichkeiten der gängigen Handelsketten und private Bäcker. In 10 Laufminuten stehen Sie am...
Das Haus
Kategorie
Einfamilienhaus
Baujahr
1938
Bezug
sofort
Energie & Heizung
Warum sehe ich diese Anzeige? – Du siehst diese Anzeige basierend auf Ihrer Navigation auf unserer Website und den Suchkriterien, die du verwendet hast.
Energieausweistyp
Bedarfsausweis
Gebäudetyp
Wohngebäude
Baujahr laut Energieausweis
1938
Wesentliche Energieträger
Gas
Gültigkeit
20.02.2026 bis 20.02.2036
Effizienzklasse
F
Endenergiebedarf
193,80 kWh/(m²·a)
Weitere Energiedaten
Energieträger
Gas
Heizungsart
Zentralheizung
Details
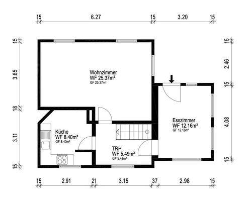
Objektbeschreibung
Es gibt sie noch, diese ehrenwerten Häuser … und um genau so ein Haus handelt es sich hier.
Man schließt die Tür auf und denkt: Eben hat doch noch jemand hier gelebt …
Jemand mit Stil … Mit Wissen … Mit Kultur … Mit einem ausgeprägten Sinn für das Schöne …
Man blickt aus dem großzügigen Salonzimmer auf das alte...
Ausstattung
Das Haus wurde 1938 massiv errichtet und ist mit einem Ziegeldach von 1999 gedeckt. Die Außenwände sind verputzt und im Garagenbereich teils verklinkert. Im hinteren Gartenteil gibt es einen kleinen, feinen Naturteich mit einer sich anschließenden, überdachten Terrasse für geruhsame Abende und Grilltreffen mit Familie und...
Weitere Informationen
Sonstiges
Durch seine sehr gute Verkehrsanbindung nach Berlin hat Oranienburg eine enorme Attraktivität auch für Pendler. Viele Oranienburger pendeln täglich zu ihren Arbeitsplätzen in Berlin. Im Gegenzug haben viele Berliner hier draußen Ihren Platz gefunden. Die Lage im grünen Oranienburg, direkt am Berliner Stadtrand...
Dokumente
Anbieter der Immobilie
Stadtland Immobilien
Klothildestr. 1a, 13156 Berlin
Online-ID: 2nlaq5r
Finde Angebote wie dieses
Hier geht es zu unserem Impressum, den Allgemeinen Geschäftsbedingungen, den Hinweisen zum Datenschutz und nutzungsbasierter Online-Werbung.