
Wohnungsmarkt Erzgebirge
Frau Sandra Barthel
+49 ···
Nr. anzeigenPreise & Kosten
Provision für Käufer
3,57% vom KP, min. 3570,00€ zzgl. MwSt.
Die Maklercourtage beträgt 3,57% vom KP, mindestens jedoch 3570,00€ zzgl. gesetzl. MwSt. und ist fällig und verdient mit der Unterzeichnung vom Kaufvertrag.
Lage
Das Objekt befindet sich zentral im Ortskern, etwas zurück versetzt von der Straße, umgeben von Wiese und altem Baumbestand. Sehmatal-Cranzahl liegt ca. 7 Kilometer südlich von Annaberg-Buchholz im Erzgebirge. Die Ortslage erstreckt sich über etwa 3,5 Kilometer entlang der Sehma. Im Osten der Gemeinde liegt der 898m hohe...
Die Wohnung
Derzeitige Nutzung
vermietet, frei
Wohnanlage
Energie & Heizung
Warum sehe ich diese Anzeige? – Du siehst diese Anzeige basierend auf Ihrer Navigation auf unserer Website und den Suchkriterien, die du verwendet hast.
Energieausweistyp
Verbrauchsausweis
Gebäudetyp
Wohngebäude
Baujahr laut Energieausweis
1968
Wesentliche Energieträger
Erdgas leicht
Gültigkeit
14.12.2025 bis 14.12.2035
Effizienzklasse
D
Endenergieverbrauch
121,10 kWh/(m²·a)
Weitere Energiedaten
Energieträger
Gas
Heizungsart
Zentralheizung
Details
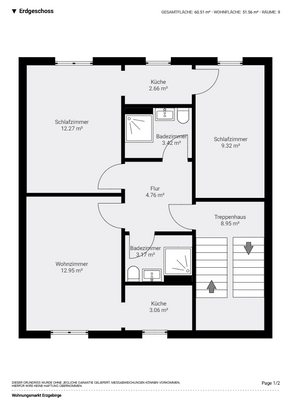
Objektbeschreibung
Zum Verkauf stehen 3 Eigentumswohnungen, in einem in den 60iger Jahren in Blockbauweise erbautem Mehrfamilienhaus im schönen Sehmatal. Die insgesamt 126m² Wohnfläche unterteilen sich in 3 Wohneinheiten, von denen 2 Wohnungen 50,5m² und eine Wohnung 25m² groß ist. Zu jeder WE gehört ein Abstellraum auf dem Dachboden bzw...
Ausstattung
1995 komplette Sanierung in allen Gewerken
Fassade gedämmt
Wärmedämmung Kellerdecke
Dachboden Schall- und Wärmeschutz
Treppenhaus Wärmedämmung
Klingel- und Gegensprechanlage
Waschmaschinenanschluss im Keller
Kellerabteil bzw. Dachbodenabteil
Fahrradraum
gemeinschaftliche Gartennutzung
Weitere Informationen
Sonstiges
Diese Immobilie wird im Rahmen eines Makleralleinauftrages von uns angeboten. Weitere Auskünfte erhalten Sie gern auf Nachfrage. Besichtigungstermine sind ausschließlich mit uns zu vereinbaren und in unserer Anwesenheit durchzuführen. Auf ausdrücklichen Wunsch unserer Auftraggeber und zum Schutz Ihrer...
Anbieter der Immobilie

Wohnungsmarkt Erzgebirge
Robert - Blum - Str. 23, 09456 Annaberg - B.
Online-ID: 2nl9p5x
Referenznummer: 166368972#OkrsQc
Finde Angebote wie dieses
Hier geht es zu unserem Impressum, den Allgemeinen Geschäftsbedingungen, den Hinweisen zum Datenschutz und nutzungsbasierter Online-Werbung.