

Immobilien Hofmann GmbH & Co. KG
Frau Sabrina Schmid-Tossmann
017 ···
Nr. anzeigenPreise & Kosten
Provision für Käufer
3,57%
3,57% Käufer-Provision inkl. MwSt. vom notariell beurkundeten Kaufpreis, verdient und fällig bei notarieller Beurkundung. Wir haben einen provisionspflichtigen Maklervertrag in gleicher Höhe mit dem Eigentümer abgeschlossen.
Lage
Lagebeschreibung
Die Wohnung befindet sich in attraktiver Lage in Altdorf bei Landshut und überzeugt durch eine gute Kombination aus ruhigem Wohnen und einer sehr guten Anbindung an die umliegende Infrastruktur.
Eine Bushaltestelle befindet sich nur wenige Meter von der Wohnung entfernt und ermöglicht eine schnelle und...
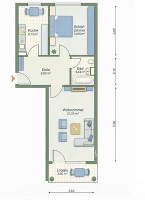
Die Wohnung
Wohnungslage
6. Geschoss (Dachgeschoss)
Bezug
sofort
Wohnanlage
Energie & Heizung
Warum sehe ich diese Anzeige? – Du siehst diese Anzeige basierend auf Ihrer Navigation auf unserer Website und den Suchkriterien, die du verwendet hast.
Weitere Energiedaten
Energieträger
Gas
Details
Objektbeschreibung
Diese attraktive 2-Zimmer-Wohnung befindet sich in einem gepflegten Mehrparteienhaus aus dem Jahr 1972 und überzeugt durch eine durchdachte Raumaufteilung sowie eine moderne Ausstattung. Die Wohnung liegt im 6. Obergeschoss und bietet auf ca. 60 m² Wohnfläche ein komfortables Zuhause - ideal sowohl zur Eigennutzung als auch...
Ausstattung
Ausstattung:
-Baujahr 1972
-Wohnfläche ca. 60 m²
-Modern renovierter Wohnungszustand
-Helle Wohnräume mit funktionalem Grundriss
-Wohnzimmer mit Zugang zum Südbalkon
-Zweifach verglaste Kunststofffenster
-Pflegeleichte Vinylböden in den Wohnräumen
-Fliesen in Küche und...
Preisinformation
1 Tiefgaragenstellplatz, Kaufpreis: 25.000,00 EUR
Weitere Informationen
Sonstiges
Prospekthaftungshinweis:
Dieses Exposé stellt kein Verkaufsangebot dar. Es dient allein Informationszwecken. Alle Angaben und Darstellungen in diesem Exposé wurden zwar mit größter Sorgfalt überprüft und zusammengestellt, sie können sich aber jederzeit ändern. Weder Immobilien Hofmann noch die übrigen...
Anbieter der Immobilie

Online-ID: 2nl9f5s
Referenznummer: 1850
Finde Angebote wie dieses
Hier geht es zu unserem Impressum, den Allgemeinen Geschäftsbedingungen, den Hinweisen zum Datenschutz und nutzungsbasierter Online-Werbung.