
ÄRZTE & APOTHEKER IMMOBILIEN
Herr Jannek Reich
004 ···
Nr. anzeigenPreise & Kosten
Provision für Käufer
6,25% inkl. ges. MwSt.
Lage
Die romantische Stadt Boizenburg/Elbe liegt im Dreiländereck Mecklenburg-Vorpommern, Niedersachsen und Schleswig-Holstein und hat ca. 11.000 Einwohner. Sie gehört zur Metropolregion Hamburg.
Diese einzigartige Immobilie liegt in direkter Nähe zu Marktplatz und Rathaus, in 1A-Lage in der Haupteinkaufsstraße...
Das Haus
Baujahr
1996
Energie & Heizung
Warum sehe ich diese Anzeige? – Du siehst diese Anzeige basierend auf Ihrer Navigation auf unserer Website und den Suchkriterien, die du verwendet hast.
Energieausweistyp
Verbrauchsausweis
Gebäudetyp
Wohngebäude
Baujahr laut Energieausweis
1996
Wesentliche Energieträger
GAS
Gültigkeit
bis 23.07.2032
Effizienzklasse
D
Endenergieverbrauch
123,70 kWh/(m²·a)
Weitere Energiedaten
Energieträger
Gas
Details
Objektbeschreibung
Diese faszinierende Gewerbeimmobilie zieht Sie auf den ersten Blick in ihren Bann. Hier wurde ein ehemaliger Kornspeicher aus der Gründerzeit zu einem, innen wie außen, repräsentativen Geschäftshaus um- und ausgebaut. Das gesamte Gebäude wurde 1996/97 aufwändig unter Beibehaltung alter Stilelemente saniert und modernisiert...
Ausstattung
-Verkaufsflächen:
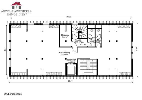
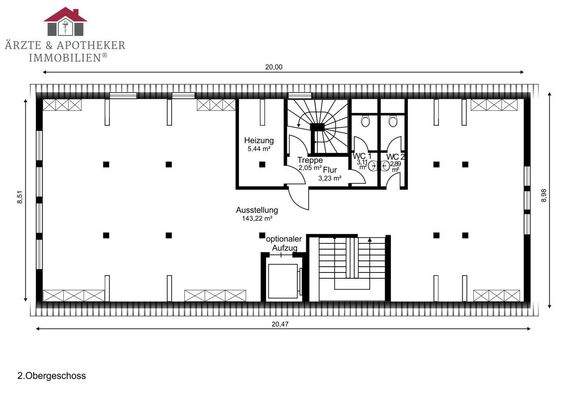
-EG ca. 150 m²
-OG ca. 150 m²
-DG ca. 130 m²
-Innendämmung der Außenwände
-Dach wärmegedämmt
-Alle Fenster isolierverglast
-Ladeneingang mit Luftschleieranlage
-Separates Treppenhaus mit Nebeneingang
-Gas-Zentralheizung
-Warmwasser über elektrische...
Weitere Informationen
Sonstiges
Vielen Dank für Ihr Interesse an der von uns angebotenen Immobilie.
Bitte haben Sie Verständnis dafür, dass wir unseren Auftraggebern Diskretion zugesagt haben und Sie daher um die Angabe Ihrer vollständigen Kontaktdaten inkl. Ihrer Telefonnummer bitten müssen.
Gern senden wir Ihnen anschließend ein...
Anbieter der Immobilie
ÄRZTE & APOTHEKER IMMOBILIEN
Lindenstr. 29, 21335 Lüneburg
Online-ID: 2nl9e5m
Referenznummer: 221306-3-1-7
Finde Angebote wie dieses
Hier geht es zu unserem Impressum, den Allgemeinen Geschäftsbedingungen, den Hinweisen zum Datenschutz und nutzungsbasierter Online-Werbung.