
Italien Hauskauf
Frau Nicole Siedersberger-King
004 ···
Nr. anzeigenPreise & Kosten
Provision für Käufer
f.d. Käufer 3,66 % inkl. MwSt. inkl. MwSt.
Lage
5 km von Seggiano und Castel del Piano.
8 km von Arcidosso.
27 km von Montalcino.
45 km von Chianciano und Montepulciano.
60 km von Grosseto.
70 km vom Tyrrhenischen Meer.
80 km von Siena.
150 km von Florenz.
190 km vom Flughafen Rom-Fiumicino.
200 km vom Flughafen Pisa.
Das Haus
Kategorie
Bauernhaus
Details
Objektbeschreibung
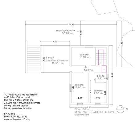
In der malerischen Landschaft von Seggiano, in einer der reizvollsten und begehrtesten Gegenden der Region, nahe dem Castello del Potentino, bieten wir dieses ca. 3,95 Hektar große Grundstück mit einer potenziellen Bebauung von ca. 155 m2 zum Verkauf an.
Das Anwesen befindet sich im berühmten Tal "Conca d'Oro", das...
Weitere Informationen
Stichworte
Anzahl der Schlafzimmer: 3, Anzahl der Badezimmer: 2
Anbieter der Immobilie
Italien Hauskauf
Tal 44, 80331 München
Online-ID: 2nl8g5d
Referenznummer: IT-462-KA
Finde Angebote wie dieses
Hier geht es zu unserem Impressum, den Allgemeinen Geschäftsbedingungen, den Hinweisen zum Datenschutz und nutzungsbasierter Online-Werbung.