
Evernest GmbH
Jannek Sönnichsen
+49 ···
Nr. anzeigenPreise & Kosten
Provision für Käufer
5.95 inkl. MwSt.
Bei Abschluss eines notariellen Kaufvertrages ist eine Käuferprovision vom Käufer in Höhe von 5.95 % inkl. MwSt. aus dem Kaufpreis fällig.
Lage
Die Immobilie in der Großen Straße 59 liegt im pulsierenden Herzen von Flensburg - einer Stadt, die Tradition, maritimes Flair und modernes Stadtleben perfekt vereint. Hier treffen historische Architektur, charmante Kopfsteinpflasterstraßen und moderne Einkaufsmöglichkeiten aufeinander.
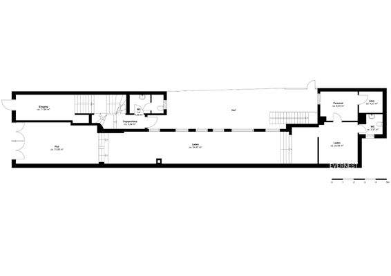
Das Ladenlokal im Erdgeschoss...
Das Haus
Baujahr
1920
Energie & Heizung
Warum sehe ich diese Anzeige? – Du siehst diese Anzeige basierend auf Ihrer Navigation auf unserer Website und den Suchkriterien, die du verwendet hast.
Energieausweistyp
Verbrauchsausweis
Gebäudetyp
Wohngebäude
Effizienzklasse
F
Endenergieverbrauch
162,92 kWh/(m²·a)
Weitere Energiedaten
Energieträger
Fernwärme
Details
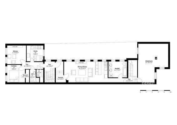
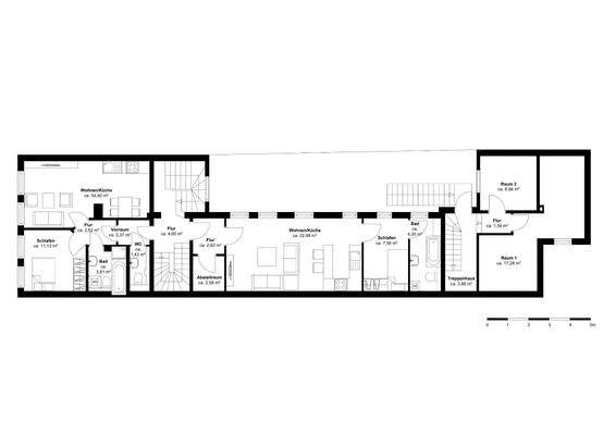
Objektbeschreibung
Dieses gepflegte Wohn- und Geschäftshaus befindet sich in zentraler Lage von Flensburg und bietet eine attraktive Kombination aus stabil vermietetem Gewerbe und modernen, sehr gefragten Wohnungen mit zusätzlichem Potential zur Vermietung als WG. Das Ladenlokal im Erdgeschoss ist an ein etabliertes Bekleidungsgeschäft...
Ausstattung
- Hochwertige Einbauküchen
- Badezimmer mit Eckwanne/Badewanne/Dusche
- Anschluss an das Fernwärmenetz
Weitere Informationen
Stichworte
Anzahl der Schlafzimmer: 11, Anzahl der Badezimmer: 6, 4 Etagen, modernisiert
Anbieter der Immobilie
Online-ID: 2nl865z
Referenznummer: L-OZXQAXR
Finde Angebote wie dieses
Hier geht es zu unserem Impressum, den Allgemeinen Geschäftsbedingungen, den Hinweisen zum Datenschutz und nutzungsbasierter Online-Werbung.