

Kaste Immobilien
Herr Jean René Kaste
+49 ···
Nr. anzeigenPreise & Kosten
Provision für Käufer
2,38% inkl. 19% MWSt.
Lage
Mardati ist ein malerisches Dorf in den Hügeln südwestlich von Agios Nikolaos, einer lebendigen Stadt an der Nordostküste Kretas. Diese ruhige Wohngegend bietet eine perfekte Balance zwischen natürlicher Schönheit und Nähe zu modernen Annehmlichkeiten.
Badestrände:
- Almyros Beach (ca. 10 Minuten Fahrt) - Ein...
Das Haus
Baujahr
2025
Energie & Heizung
Warum sehe ich diese Anzeige? – Du siehst diese Anzeige basierend auf Ihrer Navigation auf unserer Website und den Suchkriterien, die du verwendet hast.
Weitere Energiedaten
Heizungsart
offener Kamin
Details
Objektbeschreibung
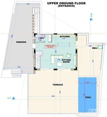
Diese wunderschöne, moderne Villa mit 3 oder 4 Schlafzimmern befindet sich in idyllischer Lage am Rande des Dorfes Mardati, Agios Nikolaos. Sie bietet atemberaubende Panoramablicke auf die Mirabello-Bucht, die umliegenden Berge sowie auf spektakuläre Mond- und Sonnenaufgänge.
Es handelt sich um ein Entwicklungsprojekt...
Ausstattung
- Vermietungsservice möglich (modular anpassbar)
- Online Besichtigung möglich
- Klimatisierung
- Balkon
- Zentralheizung
- Doppelverglasung
- Ausgestattete Küche
- Kamin
- Garten
- Blick auf die Berge
- Essbereich im Freien
- Parkplatz
- Zugang zur Straße
- Blick aufs Meer
-...
Preisinformation
2 Stellplätze
Weitere Informationen
Sonstiges
Haben wir Ihr Interesse wecken können? Für Fragen im Detail, Termine vor Ort oder für Vergleichsobjekte steht Ihnen unser Team gerne unter folgenden Telefonnummern zur Seite:
- unsere kostenlose Service-Nummer 0800-0005683 (nur innerhalb Deutschlands)
- unsere direkte Durchwahl für Immobilien auf Kreta...
Anbieter der Immobilie
Kaste Immobilien
Burgwedeler Str. 31, 30657 Hannover

Online-ID: 2nl785t
Referenznummer: GR-BAS-01-HMAR7-J
Finde Angebote wie dieses
Hier geht es zu unserem Impressum, den Allgemeinen Geschäftsbedingungen, den Hinweisen zum Datenschutz und nutzungsbasierter Online-Werbung.