

Schmidt & Bethge Immobilien Vertriebs GmbH
Herr Wladimir Zimmermann
+49 ···
Nr. anzeigenPreise & Kosten
in Warmmiete enthalten
Kaution
3 Monatsgesamtmieten
Provision für Mieter
Provisionsfrei für den Mieter inkl. MwSt.
Warum sehe ich diese Anzeige? – Du siehst diese Anzeige basierend auf Ihrer Navigation auf unserer Website und den Suchkriterien, die du verwendet hast.
Lage
Das Bürohaus ist ein Teil der Fleetkontore des Hamburger Stadtteils Hamm. Die Eiffestraße liegt in einer sehr verkehrsgünstigen Lage und ist hoch frequentiert. Anschlussstellen zur BAB wie die A1, A7, A14 und A25 aber auch die Hamburger Innenstadt sind in nur wenigen Minuten zu erreichen.
Die Anbindung an das öffentliche...
Büro-/Praxisfläche
Kategorie
Bürofläche
Baujahr
1974
Bezug
nach Absprache
Geschoss
3. Geschoss
Energie & Heizung
Warum sehe ich diese Anzeige? – Du siehst diese Anzeige basierend auf Ihrer Navigation auf unserer Website und den Suchkriterien, die du verwendet hast.
Wärme
Energieausweistyp
Verbrauchsausweis
Gebäudetyp
Nicht-Wohngebäude
Baujahr laut Energieausweis
1974
Wesentliche Energieträger
FERN
Gültigkeit
bis 29.11.2028
Endenergieverbrauch (Wärme)
78,40 kWh/(m²·a)
Weitere Energiedaten
Energieträger
Fernwärme
Details
Objektbeschreibung
Das markante Bürogebäude liegt zwischen der Eiffestraße und dem Mittelkanal und wurde im Jahr 1974 als funktionales sowie flächenökonomisches Kontorhaus errichtet. Dank seiner Lage bietet es eine gute Sichtbarkeit.
Die einzelnen Etagen sind bequem über einen Personenaufzug erreichbar. Zudem verfügt das Gebäude über...
Ausstattung
Das Objekt verfügt über:
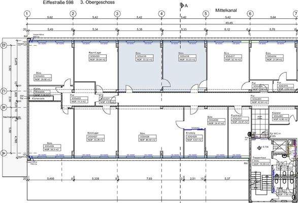
* zwie Räume mit je ca. 33m²-Fläche
* Vinyldesignboden
* Helles und geräumiges Treppenhaus
* gemeinschaftliche Herren- und Damen-WC´s
* Fahrstuhl
Preisinformation
Die Preise verstehen sich zzgl. MwSt., 1 Tiefgaragenstellplatz, Miete: 60,00 EUR
Weitere Informationen
Sonstiges
In der Betriebskostenvorauszahlung sind neben den üblichen Position wie z. B. Müllgebühr, Treppenhausreinigung, Gebäudeversicherung usw. auch eine Strom- und Wasserpauschale enthalten.
Jährlich erfolgt eine genaue Abrechnung der Betriebs- und Heizkosten.
Internet-und Telefonkosten sind darin nicht...
Anbieter der Immobilie

Online-ID: 2nl775z
Referenznummer: EFS598-3OG18-19
Finde Angebote wie dieses
Hier geht es zu unserem Impressum, den Allgemeinen Geschäftsbedingungen, den Hinweisen zum Datenschutz und nutzungsbasierter Online-Werbung.