
Andreas Otté Immobilienvermittlung
Herr Talal Heres
030 ···
Nr. anzeigenPreise & Kosten
Provision für Käufer
3,57 % inkl. 19 % MwSt. inkl. MwSt.
Lage
Die Immobilie befindet sich in einer ruhigen und gewachsenen Wohnstraße im beliebten Berliner Ortsteil Lichterfelde im Bezirk Steglitz-Zehlendorf.
Die Umgebung ist geprägt von gepflegten Ein- und Zweifamilienhäusern, viel Grün sowie einer angenehmen, familienfreundlichen Nachbarschaft.
Einkaufsmöglichkeiten...
Das Haus
Kategorie
Einfamilienhaus
Baujahr
1978
Bezug
zeitnah, nach Absprache
Energie & Heizung
Warum sehe ich diese Anzeige? – Du siehst diese Anzeige basierend auf Ihrer Navigation auf unserer Website und den Suchkriterien, die du verwendet hast.
Energieausweistyp
Bedarfsausweis
Gebäudetyp
Wohngebäude
Baujahr laut Energieausweis
1978
Gültigkeit
bis 05.02.2036
Endenergiebedarf
153,62 kWh/(m²·a)
Weitere Energiedaten
Energieträger
Öl
Heizungsart
Zentralheizung
Details
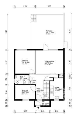
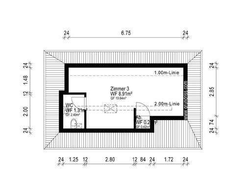
Objektbeschreibung
Dieser gepflegte Bungalow aus dem Baujahr 1978 befindet sich auf einem optimal geschnittenen, freistehenden Grundstück mit einer Größe von ca. 494 m² in ruhiger Wohnlage von Berlin-Lichterfelde. Das Fertighaus der Firma Streif bietet eine Wohnfläche von ca. 120 m², verteilt auf 1,5 Geschosse, sowie einen vollständig nutzbaren...
Ausstattung
Der Vollkeller bietet vielseitige Nutzungsmöglichkeiten und erweitert das Raumangebot erheblich.
Neben einer Diele und dem Heizungsraum mit angrenzendem Öltankraum befindet sich hier ein großes Wannenbad mit Fenster sowie Anschlüssen für eine Waschmaschine. Besonders hervorzuheben ist ein großer, tagesbelichteter Raum mit...
Preisinformation
1 Garagenstellplatz
Weitere Informationen
Sonstiges
Diese Immobilie überzeugt durch ihre solide Bauweise, die durchdachte Raumaufteilung sowie das attraktive Grundstück in einer der beliebtesten Wohnlagen im Berliner Süden. Ideal für Paare oder kleine Familien, die ruhiges Wohnen mit viel Grün und guter Anbindung an die Stadt verbinden...
Anbieter der Immobilie

Andreas Otté Immobilienvermittlung
Online-ID: 2nl775w
Referenznummer: 12002
Finde Angebote wie dieses
Hier geht es zu unserem Impressum, den Allgemeinen Geschäftsbedingungen, den Hinweisen zum Datenschutz und nutzungsbasierter Online-Werbung.