
ohne-makler.net - Immobilien selbst vermarkten
Privat von Andreas Bulcsu
017 ···
Nr. anzeigenPreise & Kosten
Provision für Käufer
provisionsfrei
Lage
Lagebeschreibung - Wissenschaft, Lebensqualität und Natur vereint
Zittau - Wissenschaftsstandort mit Zukunft
Das Mehrfamilienhaus befindet sich in bevorzugter Lage der Stadt Zittau, einem dynamischen Hochschul- und Forschungsstandort in der Oberlausitz, direkt im Dreiländereck...
Das Haus
Kategorie
Mehrfamilienhaus
Baujahr
1900
Bezug
nach Absprache
Derzeitige Nutzung
vermietet
Energie & Heizung
Warum sehe ich diese Anzeige? – Du siehst diese Anzeige basierend auf Ihrer Navigation auf unserer Website und den Suchkriterien, die du verwendet hast.
Energieausweis: für diesen Gebäudetyp nicht notwendig
Weitere Energiedaten
Energieträger
Gas
Heizungsart
offener Kamin, Zentralheizung
Details
Objektbeschreibung
Trotz sinkender Leitzinsen ist eine Entspannung der Bauzinsen nicht absehbar. Daher bietet dieses Angebot eine gute Möglichkeit Eigentum zu erwerben und gleichzeitig durch Steuerersparnisse mehr Einkommen zu generieren als vorher. Zum Verkauf steht ein attraktives und gepflegtes Mehrfamilienhaus in Zittau, das im Jahr...
Ausstattung
Garten, Keller, Duschbad, Einbauküche, Kamin, Parkett, Laminat, Fliesen, Sonstiges (s. Text)
Bemerkungen:
?? Objekt auf einen Blick
Objektart: Mehrfamilienhaus
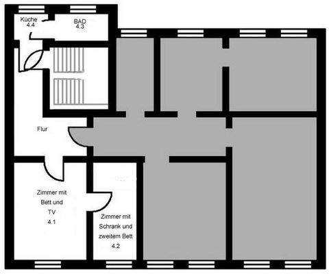
Wohnfläche gesamt: ca. 365?m²
Einheiten: 4 Wohneinheiten (zwischen 45?m² und 116?m²)
Vermietung: Voll vermietet
Modernisierung: Wohnungen...
Preisinformation
1 Garagenstellplatz
Weitere Informationen
Sonstiges
Heizungsart: Zentralheizung
Energieträger: Gas
Privatverkauf - provisionsfrei: Die Immobilie wird direkt vom Eigentümer verkauft, es fallen keine Maklergebühren an. Sie sparen sich also zwischen 15.000 und 20.000 Euro Maklergebühren.
Kein Notverkauf: Es handelt sich nicht um einen dringenden oder...
Anbieter der Immobilie
ohne-makler.net - Immobilien selbst vermarkten
Humboldtstr. 25 A, 21509 Glinde
Online-ID: 2nl5m5g
Referenznummer: 338923
Finde Angebote wie dieses
Hier geht es zu unserem Impressum, den Allgemeinen Geschäftsbedingungen, den Hinweisen zum Datenschutz und nutzungsbasierter Online-Werbung.