
EF Immobilien GmbH Dresden - Das Makler- und Verwaltungsbüro seit 1925
EF Immobilien GmbH Dresden
035 ···
Nr. anzeigenPreise & Kosten
nicht in Nebenkosten enthalten
Kaution
780,00
Warum sehe ich diese Anzeige? – Du siehst diese Anzeige basierend auf Ihrer Navigation auf unserer Website und den Suchkriterien, die du verwendet hast.
Lage
Die Wohnung befindet sich ca. 12 km östlich von der Stadtgrenze Dresden in 01833 Dürrröhrsdorf-Dittersbach im Landkreis Sächsische Schweiz-Osterzgebirge. Die Lage des Objekts zeichnet sich insbesondere durch die von der Straße entfernte bzw. ruhige Lage am Feldrand aus. Die Umgebung bietet einen hohen Freizeit- und...
Die Wohnung
Kategorie
Maisonette
Wohnungslage
4. Geschoss (Dachgeschoss)
Bezug
01.06.2026
Wohnanlage
Energie & Heizung
Warum sehe ich diese Anzeige? – Du siehst diese Anzeige basierend auf Ihrer Navigation auf unserer Website und den Suchkriterien, die du verwendet hast.
Energieausweistyp
Verbrauchsausweis
Gebäudetyp
Wohngebäude
Baujahr laut Energieausweis
1980
Wesentliche Energieträger
Strom
Gültigkeit
06.12.2018 bis 05.12.2028
Effizienzklasse
B
Endenergieverbrauch
55,00 kWh/(m²·a) - Warmwasser enthalten
Weitere Energiedaten
Energieträger
Elektro
Heizungsart
Etagenheizung
Details
Objektbeschreibung
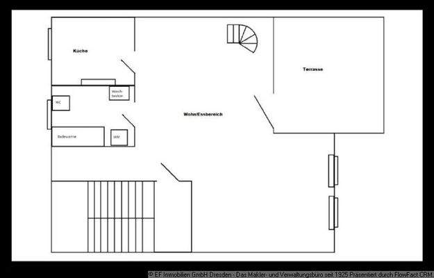
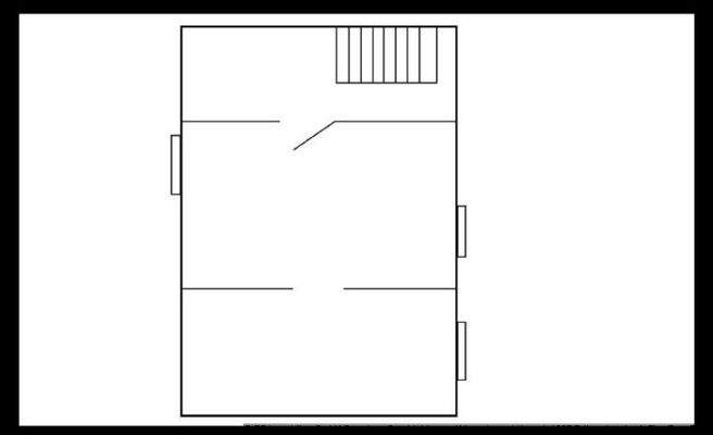
Die 2,5-Zimmer-Maisonettewohnung befindet sich im 4.OG und DG eines 1980 erbauten Merhfamilienhaus in dritter Reihe in Reihenbebauung in 01833 Dürrröhrsdorf-Dittersbach und eignet sich insbesondere für Singles, Paare mit und ohne Kind sowie Alleinerziehende.
Im 4.OG sind über das offene Wohnzimmer das Bad, die Küche...
Ausstattung
- 2,5-Zimmer-Dachgeschoss-/Maisonettewohnung (Nr. 45) mit 64 m² Wohnfläche,
- Dachterrasse (Süd-West-Ausrichtung) mit Holzbelag,
- separate Küche,
- wahlweise Entsorgung oder Übernahme der Einbauküche (ohne Geschirrspüler - ggf. Übernahme vom
aktuellen Mieter möglich) möglich,
- gefliestes Bad Badewanne...
Weitere Informationen
Sonstiges
Unsere Objektangebotsangaben basieren teilweise auf Informationen und / oder Unterlagen, die uns vom Eigentümer / Anbieter mitgeteilt wurden. Eine Haftung für deren Richtigkeit und Vollständigkeit können wir deshalb nicht übernehmen.
Bitte beachten Sie, dass die beworbene Wohnung derzeitig noch bewohnt ist...
Online-ID: 2nl235z
Referenznummer: 4322
Finde Angebote wie dieses
Weitere Immobilien
Hier geht es zu unserem Impressum, den Allgemeinen Geschäftsbedingungen, den Hinweisen zum Datenschutz und nutzungsbasierter Online-Werbung.