

OD Baubetreuung
Frau Olga Diser
017 ···
Nr. anzeigenPreise & Kosten
Provision für Käufer
3,57 %
Lage
Das Grundstück befindet sich in attraktiver Wohnlage von Leopoldshöhe-Asemissen im Kreis Lippe. Die Umgebung ist geprägt von gepflegter Einfamilien- und Doppelhausbebauung in einem gewachsenen, familienfreundlichen Wohngebiet.
Besonders hervorzuheben ist die direkte Feldrandlage, die einen freien Blick ins Grüne sowie ein...
Das Grundstück
Energie & Heizung
Warum sehe ich diese Anzeige? – Du siehst diese Anzeige basierend auf Ihrer Navigation auf unserer Website und den Suchkriterien, die du verwendet hast.
Energieausweis: für diesen Gebäudetyp nicht notwendig
Details
Objektbeschreibung
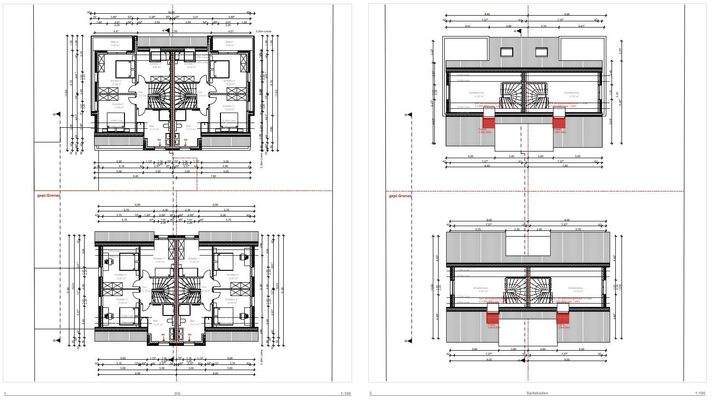
Auf einem ca. 1.326 m² großen Grundstück (Flur 5, Flurstück 530) im beliebten Neubaugebiet „Holzkamp“ in Leopoldshöhe-Asemissen entsteht die Planung für zwei moderne Doppelhäuser mit insgesamt vier Wohneinheiten.
Das Grundstück wird mieterfrei veräußert. Der vorhandene Gebäudebestand ist als Abrissobjekt...
Weitere Informationen
Sonstiges
? Ausstattung & Architektur
Die Planung zeichnet sich aus durch:
• moderne Architektur mit klassischem Satteldach
• großzügige, lichtdurchflutete Grundrisse
• familienfreundliche Raumaufteilung über drei Ebenen
• optimale Süd-/West-Ausrichtung der Terrassen
• klare Grundstücksaufteilung mit...
Anbieter der Immobilie
OD Baubetreuung
Erlenstr. 14, 32105 Bad Salzuflen

Online-ID: 2nkzl5h
Finde Angebote wie dieses
Hier geht es zu unserem Impressum, den Allgemeinen Geschäftsbedingungen, den Hinweisen zum Datenschutz und nutzungsbasierter Online-Werbung.