

Immobiliengesellschaft der Westerwald Bank mbH
Frau Bettina Dietershagen
+49 ···
Nr. anzeigenPreise & Kosten
Provision für Käufer
3,57 % inkl. MwSt.
Lage
Der Luftkurort Rengsdorf hat ca. 2.800 Einwohner und liegt am Rande des Westerwaldes in einer typischen Tallandschaft vor den Toren von Neuwied.
Rengsdorf zeichnet sich durch eine sehr hohe Wohnqualität aus.
Im Ort befinden sich ausreichend Einrichtungen des täglichen Bedarfs, wie z.B. Einkaufsmöglichkeiten...
Das Haus
Kategorie
Einfamilienhaus
Baujahr
1951
Energie & Heizung
Warum sehe ich diese Anzeige? – Du siehst diese Anzeige basierend auf Ihrer Navigation auf unserer Website und den Suchkriterien, die du verwendet hast.
Energieausweistyp
Bedarfsausweis
Gebäudetyp
Wohngebäude
Baujahr laut Energieausweis
1951
Wesentliche Energieträger
Gas
Gültigkeit
30.05.2023 bis 29.05.2033
Effizienzklasse
H
Endenergiebedarf
342,80 kWh/(m²·a)
Weitere Energiedaten
Haustyp
Massivhaus
Energieträger
Gas
Details
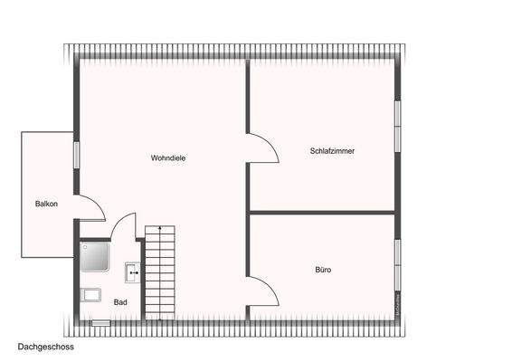
Objektbeschreibung
Zum Verkauf steht ein ansprechendes und charmantes Einfamilienhaus mit hübscher und gelungener Raumaufteilung in verkehrsberuhigter, zentraler und beliebter Wohnlage von Rengsdorf mit schöner Aussicht über den Ort.
Ursprünglich wurde die Immobilie schätzungsweise um 1951 in massiver Bauweise errichtet und vom heutigen...
Ausstattung
Massivbauweise aus etwa 1951, Kellergeschoß aus Bruchsteinen, massive Innenwände, Außenfassade verputzt und gestrichen, Eingangsüberdachung aus Glas, Satteldach mit Eindeckung in Schiefer, Dämmung der obersten Geschoßdecke, Kunststofffenster isolierverglast aus 1986 mit Klappläden, Gaszentralheizung aus 1993 mit zentraler...
Weitere Informationen
Stichworte
Nutzfläche: 30,00 m², Bundesland: Rheinland-Pfalz, 1 Etagen
Anbieter der Immobilie

Online-ID: 2nkx35x
Referenznummer: 2 953 3
Finde Angebote wie dieses
Hier geht es zu unserem Impressum, den Allgemeinen Geschäftsbedingungen, den Hinweisen zum Datenschutz und nutzungsbasierter Online-Werbung.