
Engel & Völkers Regensburg - E u. V Regensburger Immobilien GmbH
Engel & Völkers Regensburg
+49 ···
Nr. anzeigenPreise & Kosten
Provision für Käufer
3.57 % inkl. gesetzl. MwSt.
Der Makler-Vertrag mit uns (E u. V Regensburger Immobilien GmbH) kommt durch die Bestätigung der Inanspruchnahme unserer Maklertätigkeit in Textform zustande, wie z.B. Weitere Informationen siehe Provisionshinweis.
Lage
Die angebotene Doppelhaushälfte befindet sich in Kelheim, im beliebten Stadtteil Hohenpfahl.
Die Lage überzeugt durch eine ruhige Wohnatmosphäre inmitten einer gewachsenen Nachbarschaft und vereint die Vorteile stadtnaher Infrastruktur mit naturnaher Umgebung.
Hohenpfahl liegt am südöstlichen Stadtrand von Kelheim...
Das Haus
Kategorie
Doppelhaushälfte
Baujahr
1959
Bezug
sofort
Energie & Heizung
Warum sehe ich diese Anzeige? – Du siehst diese Anzeige basierend auf Ihrer Navigation auf unserer Website und den Suchkriterien, die du verwendet hast.
Energieausweistyp
Bedarfsausweis
Gebäudetyp
Wohngebäude
Baujahr laut Energieausweis
1959
Gültigkeit
seit 02.10.2025
Effizienzklasse
G
Endenergiebedarf
206,60 kWh/(m²·a)
Weitere Energiedaten
Energieträger
Öl
Heizungsart
Zentralheizung
Details
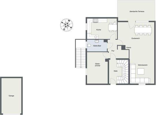
Objektbeschreibung
Diese gepflegte Doppelhaushälfte aus dem Jahr 1959 bietet mit einer Wohnfläche von rund 142 m² und einem 522 m² großen Grundstück ideale Voraussetzungen für junge Familien. Die Immobilie vereint eine solide Bausubstanz mit einer durchdachten Raumaufteilung und wurde fortlaufend modernisiert.
Im Erdgeschoss bildet der...
Ausstattung
Abstellkammer, Einbauschränke, Einbauküche
Weitere Informationen
Provisionshinweis
3.57 % inkl. gesetzl. MwSt.
Der Makler-Vertrag mit uns (E u. V Regensburger Immobilien GmbH) kommt durch die Bestätigung der Inanspruchnahme unserer Maklertätigkeit in Textform zustande, wie z.B. insbesondere die Unterschrift des Suchkundenvertrages und/oder eines entsprechenden Objektnachweises. Die...
Online-ID: 2nkvl5y
Referenznummer: I-046HVS-W-046HVS
Finde Angebote wie dieses
Hier geht es zu unserem Impressum, den Allgemeinen Geschäftsbedingungen, den Hinweisen zum Datenschutz und nutzungsbasierter Online-Werbung.