
Drenkhahn Immobilien GmbH
Herr Kay Brandes
+49 ···
Nr. anzeigenPreise & Kosten
Provision für Käufer
5,95 % inkl. 19% gesetzl. MwSt vom Kaufpreis.
Der Makler-Vertrag mit unserem Unternehmen entsteht durch schriftliche Vereinbarung oder durch die Inanspruchnahme unserer Maklertätigkeit. Weitere Informationen siehe Provisionshinweis.
Lage
Allgemeine Lage:
Die Möllner Landstraße befindet sich in Hamburg, einer der dynamischsten und bedeutendsten Städte Deutschlands. Hamburg, als einer der größten Hafenstädte Europas, zieht stetig Menschen und Unternehmen an und bietet zahlreiche Möglichkeiten für Immobilienentwickler.
Mikrolage:
Das Grundstück an...
Das Grundstück
Details
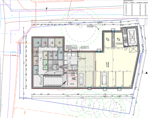
Objektbeschreibung
Auf dem 1.068?m² großen Grundstück in attraktiver Wohnlage von Hamburg-Billstedt wurde die Baugenehmigung für ein modernes Mehrfamilienhaus mit 12 Wohneinheiten und Tiefgarage erteilt. Aktuell befindet sich noch ein Altbestand auf dem Grundstück, der im Zuge der Realisierung abgerissen werden muss. Die Baugenehmigung liegt...
Ausstattung
Bruttogeschossfläche: 1.556 m²
Untergeschoss - 566 m²
Erdgeschoss - 315 m²
Obergeschoss - 315 m²
Dachgeschoss - 215 m²
Spitzboden - 145 m²
Erdgeschoss Wohnfläche: 232,5 m²
Wohnung 1 - 51,5 m²
Wohnung 2 - 69,5 m²
Wohnung 3 - 56,5 m²
Wohnung 4 - 55,0 m²
Obergeschoss Wohnfläche...
Preisinformation
9 Tiefgaragenstellplätze
Weitere Informationen
Provisionshinweis
5,95 % inkl. 19% gesetzl. MwSt vom Kaufpreis.
Der Makler-Vertrag mit unserem Unternehmen entsteht durch schriftliche Vereinbarung oder durch die Inanspruchnahme unserer Maklertätigkeit. Die Vertragsbasis bildet das Objekt-Exposé. Die Käuferprovision ist bei notariellem Vertragsabschluss verdient und...
Anbieter der Immobilie
Online-ID: 2nkuw5j
Referenznummer: 131869473
Finde Angebote wie dieses
Hier geht es zu unserem Impressum, den Allgemeinen Geschäftsbedingungen, den Hinweisen zum Datenschutz und nutzungsbasierter Online-Werbung.