
RE/MAX Buschlinger Immobilien V & V GmbH
Herr Sven Buschlinger
004 ···
Nr. anzeigenPreise & Kosten
Provision für Käufer
3,57 % inkl. 19 % MwSt. des beurkundeten Kaufpreises
Lage
Die Gemeinde Bischofsheim ist ein zentraler Verkehrsort in der Mainspitze mit ca. 13.000 Einwohnern. Sie stellt einen Verkehrsknotenpunkt im Wirtschaftsgebiet Rhein-Main dar (Bahnlinie Wiesbaden / Mainz / Frankfurt / Darmstadt, Autobahnanschluss A60 Richtung Darmstadt / Frankfurt, A671 Richtung Wiesbaden). Das Vereinsleben...
Das Renditeobjekt
Kategorie
Mehrfamilienhaus
Baujahr
1962
Energie & Heizung
Warum sehe ich diese Anzeige? – Du siehst diese Anzeige basierend auf Ihrer Navigation auf unserer Website und den Suchkriterien, die du verwendet hast.
Energieausweistyp
Bedarfsausweis
Gebäudetyp
Wohngebäude
Baujahr laut Energieausweis
1962
Wesentliche Energieträger
GAS
Gültigkeit
bis 24.09.2035
Effizienzklasse
G
Endenergiebedarf
206,44 kWh/(m²·a)
Weitere Energiedaten
Energieträger
Gas
Heizungsart
Zentralheizung
Details
Objektbeschreibung
Das 2-Familienhaus ist bereits nach dem Wohnungseigentumsgesetz (WEG) geteilt d.h. Sie können später auch jede Wohnung einzeln verkaufen.
Das Objekt befindet sich am Ende einer Sackgasse im alten Ortskern von Bischofsheim, direkt am historischen Damm.
Der Zugang zur Erdgeschosswohnung erfolgt über den Damm, der zur...
Ausstattung
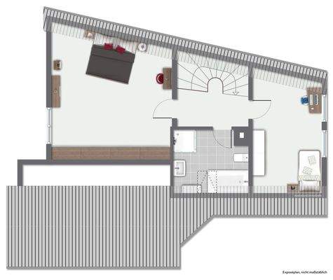
- Erdgeschoss (freigestellt) mit 4 Zimmern, Küche, Tageslichtbad, Gäste-WC, 2 Hobbyräumen und einem Kellerraum
- Terrasse und Garten zum Erdgeschoss gehörig
- die zweite Wohnung befindet sich im 1.Obergeschoss und Dachgeschoss mit 4 Zimmern, Küche, Tageslichtbad, Gäste-WC und großer Sonnenterrasse
- 2...
Preisinformation
2 Garagenstellplätze
Soll-Mieteinnahmen pro Jahr: 32.976,00 EUR
Weitere Informationen
Sonstiges
Es liegt ein Energiebedarfsausweis vor.
Dieser ist gültig bis 24.9.2035.
Endenergiebedarf beträgt 206.44 kwh/(m²*a).
Wesentlicher Energieträger der Heizung ist Gas.
Das Baujahr des Objekts lt. Energieausweis ist 1962.
Die Energieeffizienzklasse ist G.
Alle genannten Angaben zum Objekt...
Anbieter der Immobilie
RE/MAX Buschlinger Immobilien V & V GmbH
Schulstrasse 21 a, 65474 Bischofsheim
Online-ID: 2nkuv5g
Referenznummer: 1140-1440
Finde Angebote wie dieses
Hier geht es zu unserem Impressum, den Allgemeinen Geschäftsbedingungen, den Hinweisen zum Datenschutz und nutzungsbasierter Online-Werbung.