

Immobilien-Team Nordoberpfalz GmbH
Herr Marzellus Keizers
096 ···
Nr. anzeigenPreise & Kosten
Provision für Käufer
3,57 Bruttoprovision inkl. der gesetzlichen Mehrwertsteuer, fällig bei Vertragsabschluss.
Lage
95705 Markt Leuchtenberg
Lückenrieth 24
Sehr ruhige Waldrandlage, sehr ruhige Straße und guter Anbindung! Schöne, kleine Gemeinderandlage in ruhiger Umgebung. In diesem Siedlungsbereich ist eine ruhige, angenehme Wohnatmosphäre garantiert.
Das Haus
Baujahr
1971
Bezug
01.05.2026
Energie & Heizung
Warum sehe ich diese Anzeige? – Du siehst diese Anzeige basierend auf Ihrer Navigation auf unserer Website und den Suchkriterien, die du verwendet hast.
Energieausweistyp
Bedarfsausweis
Gebäudetyp
Wohngebäude
Baujahr laut Energieausweis
1970
Wesentliche Energieträger
Öl
Gültigkeit
25.02.2026 bis 25.02.2036
Endenergiebedarf
216,20 kWh/(m²·a)
Weitere Energiedaten
Energieträger
Holz, Öl
Heizungsart
offener Kamin, Zentralheizung
Details
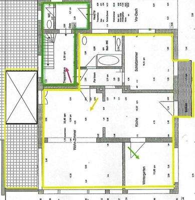
Objektbeschreibung
Entdecken Sie diese einmalige Gelegenheit, inmitten der unberührten Natur von Lückenrieth bei Leuchtenberg zwei großzügige Häuser auf separaten Grundstücken zu erwerben.
Diese einzigartige Immobilie eignet sich ideal für eine große Familie, die viel Platz zur Entfaltung benötigt.
Stammhaus:
Das Erdgeschoss...
Ausstattung
2398 m² Grund
300 m² Wohnfläche
2 Häuser verbunden mit der Ölheizung
Kachelöfen und Schwedenofen
3 Garagen, Werkstatt und Lager
Scheune und großer Park
Waldgrundstück mit 5500 m² wäre mit zu verkaufen.
Weitere Informationen
Sonstiges
Besichtigungen wäre nach Absprache jederzeit auch am Abend und am Wochenende möglich. Rufen Sie uns einfach an.
Heizungsart:
Heizkoerper
Anbieter der Immobilie
Immobilien-Team Nordoberpfalz GmbH
Meilerstr. 21, 92637 Weiden

Online-ID: 2nkqd5t
Referenznummer: 2026-025
Finde Angebote wie dieses
Hier geht es zu unserem Impressum, den Allgemeinen Geschäftsbedingungen, den Hinweisen zum Datenschutz und nutzungsbasierter Online-Werbung.