

AVL-Projektentwicklungs GmbH
Herr Hans-Jürgen Lichter
065 ···
Nr. anzeigenPreise & Kosten
Abschreibung/Anlage
als Kapitalanlage geeignet
Lage
Die begehrte Lage in Bernkastel-Kues, die unmittelbare Nähe zur Mosel sowie die gute Anbindung an Städte wie Trier, Luxemburg und Köln sichern eine konstant hohe Nachfrage nach Wohnraum – ideal für Eigennutzer und Investoren.
Attraktive Steuervorteile: Profitieren Sie von der degressiven AfA mit bis zu 5 % für 6 Jahre...
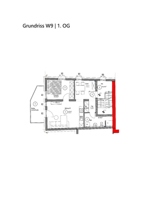
Die Wohnung
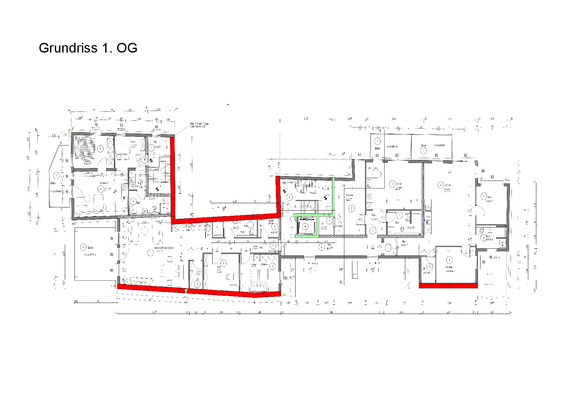
Wohnungslage
1. Geschoss
Energie & Heizung
Warum sehe ich diese Anzeige? – Du siehst diese Anzeige basierend auf Ihrer Navigation auf unserer Website und den Suchkriterien, die du verwendet hast.
Energieausweistyp
Bedarfsausweis
Gebäudetyp
Wohngebäude
Wesentliche Energieträger
Luft-Wärmepumpe
Gültigkeit
seit 03.03.0025
Effizienzklasse
A+
Endenergiebedarf
11,80 kWh/(m²·a)
Weitere Energiedaten
Heizungsart
Fußbodenheizung, Luft-/Wasser-Wärmepumpe
Details
Objektbeschreibung
Die Eigentumswohnung befindet sich in einem nachhaltigen Neubau nach KfW-40-EE-Standard und überzeugt durch eine moderne, umweltfreundliche Beheizung mittels Luft-Wärmepumpe – energieeffizient, zukunftssicher und wertbeständig.
Das Objekt entsteht in attraktiver Lage am Nikolausufer, der repräsentativen Einfahrtsstraße in...
Ausstattung
Wohnungsdetails (ca. 55,40 m²):
• Großzügiger Wohn-/Ess-/Kochbereich
• Schlafzimmer
• Badezimmer
• Abstellraum
• Balkon mit attraktivem Moselblick
Weitere Informationen
Gerne beantworten wir Ihre Fragen oder senden Ihnen ein ausführliches Exposé zu. Weitere Informationen finden Sie unter: https://www.avl-web.de/
Ihr Ansprechpartner: Hans-Jürgen Lichter Tel. 0151 46536671
Anbieter der Immobilie
AVL-Projektentwicklungs GmbH
Im Webersgarten 25, 54484 Noviand

Online-ID: 2nkpl5y
Referenznummer: BKS09
Finde Angebote wie dieses
Hier geht es zu unserem Impressum, den Allgemeinen Geschäftsbedingungen, den Hinweisen zum Datenschutz und nutzungsbasierter Online-Werbung.