

DAHLER Potsdam | Berlin-Wannsee | Kleinmachnow
Herr Phillip Quednau
033 ···
Nr. anzeigenPreise & Kosten
Provision für Käufer
3,57% inkl. MwSt. bezogen auf den beurkundeten Kaufpreis
Lage
Im Südwesten Berlins, im Bezirk Steglitz-Zehlendorf, liegt der Ortsteil Wannsee - eine der exklusivsten und gefragtesten Wohnlagen der Hauptstadt. Der von Seen, Wäldern und großzügigen Villengrundstücken geprägte Stadtteil verbindet naturnahes Wohnen mit der Nähe zu den urbanen Zentren von Berlin und Potsdam. Bereits im...
Das Haus
Kategorie
Doppelhaushälfte
Baujahr
1980
Energie & Heizung
Warum sehe ich diese Anzeige? – Du siehst diese Anzeige basierend auf Ihrer Navigation auf unserer Website und den Suchkriterien, die du verwendet hast.
Energieausweistyp
Bedarfsausweis
Gebäudetyp
Wohngebäude
Wesentliche Energieträger
OEL
Gültigkeit
bis 22.02.2036
Effizienzklasse
D
Endenergiebedarf
125,50 kWh/(m²·a)
Weitere Energiedaten
Energieträger
Öl
Heizungsart
Zentralheizung
Details
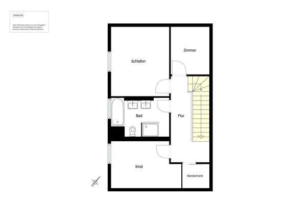
Objektbeschreibung
Diese gepflegte und umfassend modernisierte Doppelhaushälfte aus dem Jahr 1980 befindet sich in ruhiger und besonders begehrter Lage im Berliner Ortsteil Wannsee. Die Immobilie wurde im Jahr 2016 umfassend saniert und präsentiert sich heute in einem modernen und sehr gepflegten Gesamtzustand. Auf rund 116 m² Wohnfläche bietet...
Ausstattung
. Gepflegte Doppelhaushälfte in ruhiger und naturnaher Wohnlage von Berlin-Wannsee
. Baujahr 1980 mit umfassender Modernisierung im Jahr 2016
. ca. 116 m² Wohnfläche verteilt auf drei Ebenen
. Grundstück mit ca. 341 m² in gut nutzbarer Größe
. 4,5 Zimmer mit vielseitigen Nutzungs- und Gestaltungsmöglichkeiten
...
Preisinformation
1 Stellplatz
Weitere Informationen
Sonstiges
Ihre Werte sind bei uns in besten Händen
DAHLER ist auf die Vermittlung hochwertiger Wohnimmobilien in bevorzugten Lagen spezialisiert. Seit über 30 Jahren wird unser Unternehmen von Kirsten und Björn Dahler geführt und setzt mit Innovationskraft und Servicequalität Maßstäbe in der Branche. Unsere mehr als...
Anbieter der Immobilie

Online-ID: 2nkp85w
Referenznummer: D-WAN8735
Finde Angebote wie dieses
Hier geht es zu unserem Impressum, den Allgemeinen Geschäftsbedingungen, den Hinweisen zum Datenschutz und nutzungsbasierter Online-Werbung.