
Borgmann | Frank Immobilien GmbH
Eduard Frank
017 ···
Nr. anzeigenPreise & Kosten
Provision für Käufer
3,57 %
Lage
Die Immobilie befindet sich in einem ruhigen Wohngebiet mit überwiegend Ein- und Zweifamilienhäusern. Besonders praktisch: Die Grundschule Alfhausen liegt direkt nebenan - der Schulweg fällt also wortwörtlich weg. Auch die nächstgelegene Kindertagesstätte ist nur etwa 3 Gehminuten entfernt, was die Lage für Familien besonders...
Das Haus
Kategorie
Mehrfamilienhaus
Baujahr
1981
Energie & Heizung
Warum sehe ich diese Anzeige? – Du siehst diese Anzeige basierend auf Ihrer Navigation auf unserer Website und den Suchkriterien, die du verwendet hast.
Energieausweistyp
Verbrauchsausweis
Gebäudetyp
Wohngebäude
Wesentliche Energieträger
Fernwärme
Effizienzklasse
G
Endenergieverbrauch
206,93 kWh/(m²·a)
Details
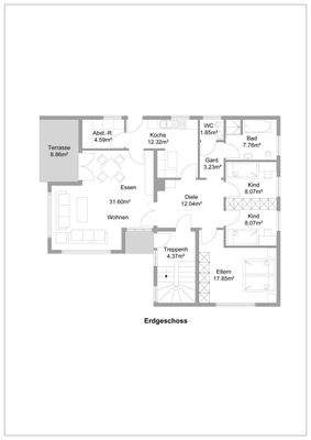
Objektbeschreibung
Zwei Wohnungen, viel Grundstück und jede Menge Möglichkeiten: Dieses Zweifamilienhaus bietet Raum für Eigennutzer, Kapitalanleger oder alle, die beides clever kombinieren möchten.
Auf einem großzügigen 973 m² großen Eigentumsgrundstück steht dieses Zweifamilienhaus aus dem Jahr 1981. Solide gebaut, klar strukturiert...
Ausstattung
Ausstattung und Eckdaten
. Zweifamilienhaus aus dem Baujahr 1981
. ca. 197 m² Wohnfläche verteilt auf zwei nahezu identische Wohnungen
. großzügiges Eigentumsgrundstück mit 973 m²
. Erdgeschosswohnung aktuell frei - ideal für Eigennutzer oder Neuvermietung
. Obergeschoss weiterhin solide vermietet mit...
Weitere Informationen
Sonstiges
So läuft's mit Anfrage & Besichtigung
Sie möchten mehr über diese Immobilie erfahren oder einen Besichtigungstermin vereinbaren? Kein Problem - melden Sie sich einfach per Telefon oder E-Mail bei uns.
Damit wir Ihnen alle relevanten Informationen zur Verfügung stellen können, benötigen wir vorab...
Anbieter der Immobilie
Online-ID: 2nkna5q
Referenznummer: 160670
Finde Angebote wie dieses
Hier geht es zu unserem Impressum, den Allgemeinen Geschäftsbedingungen, den Hinweisen zum Datenschutz und nutzungsbasierter Online-Werbung.